お気に入りを解除しました。
江坂M
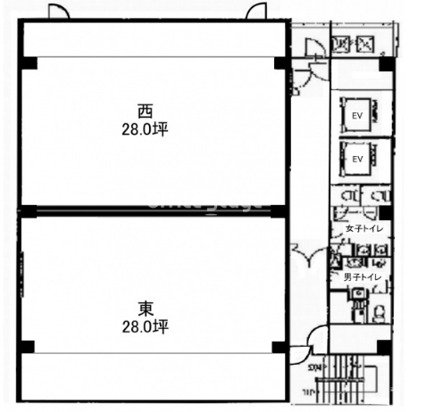
物件番号:I1011019
5階28坪

- この物件の賃料の価格帯(共益費込)
- この部屋は成約済みです
| 物件名 | 江坂M 【このビルのその他の募集階】 |
||
|---|---|---|---|
| 住所 | 吹田市江坂町1丁目17番9号 江坂・千里中央・箕面でよく検索されるその他の物件 |
||
| 構造(規模) | 鉄骨造地上8階建 | ||
| 築年月 | 2004年2月1日 | ||
| 坪数 |
28坪 |
||
| 階数 | 5階 | ||
| 保証金 | - | ||
| 敷金 | - | ||
| 礼金 | - | ||
| 沿線 最寄駅 |
地下鉄御堂筋線 江坂駅 徒歩3分 (江坂駅の賃貸事務所) |
||
| アクセス | 新大阪駅まで電車11分 大阪駅梅田駅まで電車17分 関西空港まで電車63分、車55分 伊丹空港まで車13分 高速入口:豊中・豊中南入口 |
||
| EV基数 | 2基 | 人荷EV基数 | - |
| 空調タイプ | 個別 | ||
| 備考 | |||
- お電話でお問い合わせ(無料)
-
平日13時までのお問い合わせで
当日に物件をご紹介!
お電話の場合「物件番号:I1011019」
をお伝えください

