お気に入りを解除しました。
吹田江坂
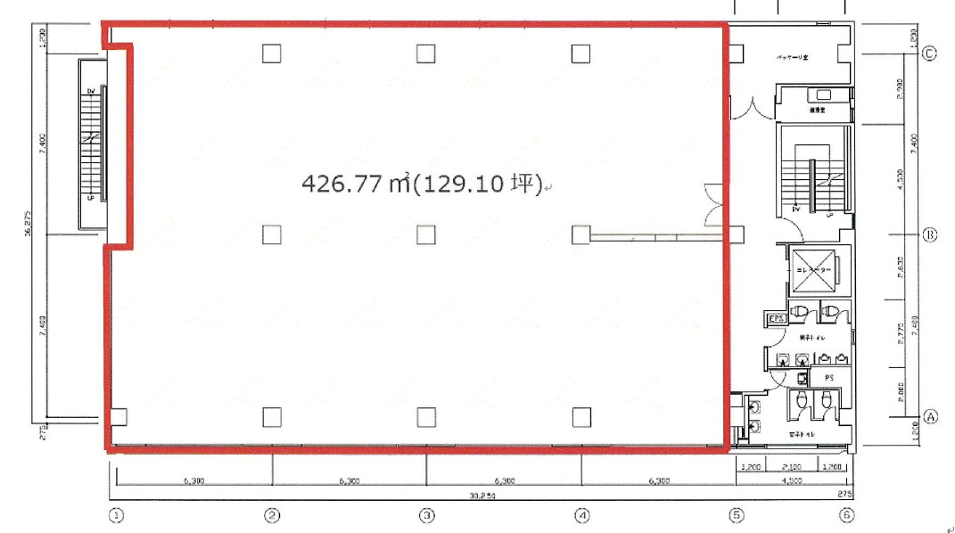
物件番号:I10232513
3階129.1坪

- この物件の賃料の価格帯(共益費込)
- この部屋は成約済みです
| 物件名 | 吹田江坂 【このビルのその他の募集階】 |
||
|---|---|---|---|
| 住所 | 大阪府吹田市垂水町3丁目25番13号 江坂・千里中央・箕面でよく検索されるその他の物件 |
||
| 構造(規模) | 鉄筋コンクリート造地上5階建 | ||
| 築年月 | 1977年1月1日 | ||
| 坪数 |
129.1坪 |
||
| 階数 | 3階 | ||
| 保証金 | - | ||
| 敷金 | - | ||
| 礼金 | - | ||
| 沿線 最寄駅 |
地下鉄御堂筋線 江坂駅 徒歩8分 (江坂駅の賃貸事務所) |
||
| アクセス | 新大阪駅まで電車16分 大阪駅梅田駅まで電車22分 関西空港まで電車70分、車55分 伊丹空港まで車14分 高速入口:豊中・豊中南入口 |
||
| EV基数 | 1基 | 人荷EV基数 | - |
| 空調タイプ | 個別 | ||
| 備考 | |||
- お電話でお問い合わせ(無料)
-
平日13時までのお問い合わせで
当日に物件をご紹介!
お電話の場合「物件番号:I10232513」
をお伝えください

