お気に入りを解除しました。
野村不動産大阪
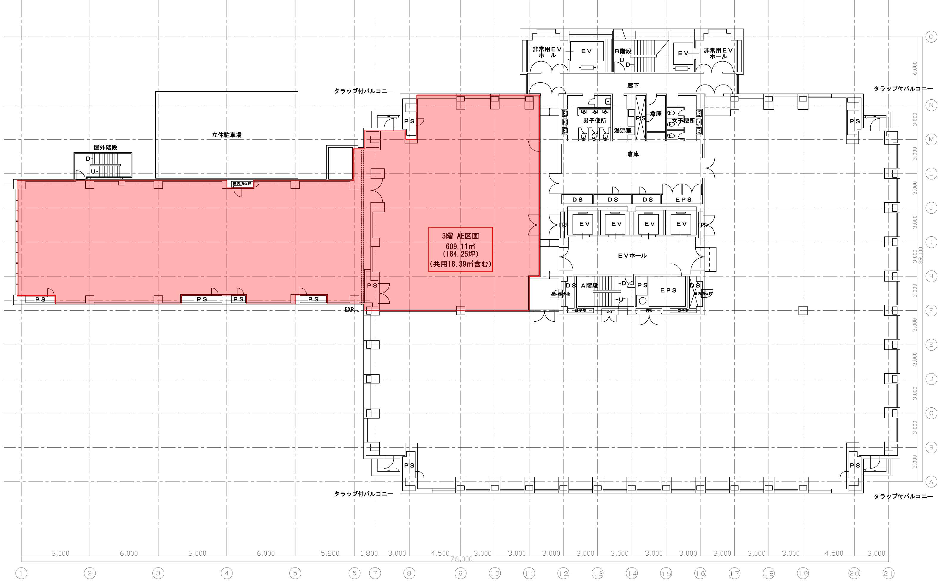
物件番号:A110124
3階184.25坪

- この物件の賃料の価格帯(共益費込)
- この部屋は成約済みです
| 物件名 | 野村不動産大阪 【このビルのその他の募集階】 |
||
|---|---|---|---|
| 住所 | 大阪府大阪市中央区安土町1丁目8番15号 本町・堺筋本町でよく検索されるその他の物件 |
||
| 構造(規模) | 鉄骨鉄筋コンクリート造地上12階地下1階建 | ||
| 築年月 | 1983年12月1日 | ||
| 坪数 |
184.25坪 |
||
| 階数 | 3階 | ||
| 保証金 | - | ||
| 敷金 | - | ||
| 礼金 | - | ||
| 沿線 最寄駅 |
地下鉄堺筋線 堺筋本町駅 徒歩1分 (堺筋本町駅の賃貸事務所) 地下鉄中央線 堺筋本町駅 徒歩4分 (堺筋本町駅の賃貸事務所) 地下鉄御堂筋線 本町駅 徒歩7分 (本町駅の賃貸事務所) |
||
| アクセス | 新大阪駅まで電車19分 大阪駅梅田駅まで電車13分 関西空港まで電車52分、車51分 伊丹空港まで車20分 高速入口:環状線高麗橋・信濃橋・阿波座 |
||
| EV基数 | 4基 | 人荷EV基数 | 2基 |
| 空調タイプ | 集中+個別 | ||
| 備考 | ・駅近 ・大通り沿い ・新耐震基準適合 |
||

堺筋に面した角地に建つハイグレードな大型オフィスビル。大阪のオフィス街を映し出すガラスのカーテンウォールがキリっとした印象です。大手不動産会社が所有するビルで優良企業が多数入居しております。フロアがサイドコアの構造になっており、効率よいレイアウトが可能です。非常用発電機を完備し、変電所からの送電経路を3経路に分散して、送電停止のリスクを低減しています。又EV内防災備品を常時設置!
- お電話でお問い合わせ(無料)
-
平日13時までのお問い合わせで
当日に物件をご紹介!
お電話の場合「物件番号:A110124」
をお伝えください
