お気に入りを解除しました。
大作
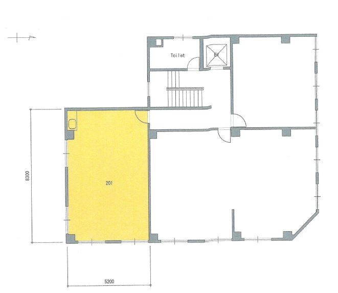
物件番号:C104005
2階13.06坪
- この物件の賃料の価格帯(共益費込)
- この部屋は成約済みです
| 物件名 | 大作 【このビルのその他の募集階】 |
||
|---|---|---|---|
| 住所 | 大阪府大阪市北区菅原町7番11号 南森町でよく検索されるその他の物件 |
||
| 構造(規模) | 鉄筋コンクリート地上6階建 | ||
| 築年月 | 1967年 | ||
| 坪数 |
13.06坪 |
||
| 階数 | 2階 | ||
| 保証金 | - | ||
| 敷金 | - | ||
| 礼金 | - | ||
| 沿線 最寄駅 |
地下鉄谷町線 南森町駅 徒歩8分 (南森町駅の賃貸事務所) 地下鉄堺筋線 南森町駅 徒歩8分 (南森町駅の賃貸事務所) JR東西線 大阪天満宮駅 徒歩8分 (大阪天満宮駅の賃貸事務所) |
||
| アクセス | 新大阪駅まで電車24分 大阪駅梅田駅まで電車18分 関西空港まで電車60分、車45分 伊丹空港まで車20分 高速入口:環状線南森町・扇町・高麗橋入口 |
||
| EV基数 | 1基 | 人荷EV基数 | - |
| 空調タイプ | 個別 | ||
| 備考 | |||

落ち着いた周辺環境にあるこちらのビルは築年数を感じさせない管理の良さが自慢です。角ビルなので全室採光は良好で柔らかい日差しが心地良いです。トイレは各階男女別で自転車置き場も完備しています。
- お電話でお問い合わせ(無料)
-
平日13時までのお問い合わせで
当日に物件をご紹介!
お電話の場合「物件番号:C104005」
をお伝えください
