お気に入りを解除しました。
JPR心斎橋ウエスト(旧南船場)
物件番号:A205473
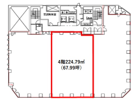
4階67.99坪

- この物件の賃料の価格帯(共益費込)
- この部屋は成約済みです
| 物件名 | JPR心斎橋ウエスト(旧南船場) 【このビルのその他の募集階】 |
||
|---|---|---|---|
| 住所 | 大阪府大阪市中央区南船場4丁目11番28号 心斎橋・長堀橋でよく検索されるその他の物件 |
||
| 構造(規模) | 鉄骨鉄筋コンクリート造地上8階地下1階建 | ||
| 築年月 | 1986年9月1日 | ||
| 坪数 |
67.99坪 |
||
| 階数 | 4階 | ||
| 保証金 | - | ||
| 敷金 | - | ||
| 礼金 | - | ||
| 沿線 最寄駅 |
地下鉄御堂筋線 心斎橋駅 徒歩3分 (心斎橋駅の賃貸事務所) 地下鉄長堀鶴見緑地線 心斎橋駅 徒歩3分 (心斎橋駅の賃貸事務所) 地下鉄四つ橋線 四ツ橋駅 徒歩5分 (四ツ橋駅の賃貸事務所) |
||
| アクセス | 新大阪駅まで電車17分 大阪駅梅田駅まで電車11分 関西空港まで電車52分、車47分 伊丹空港まで車25分 高速入口:環状線信濃橋・阿波座 |
||
| EV基数 | 2基 | 人荷EV基数 | - |
| 空調タイプ | 個別 | ||
| 備考 | |||

大阪メトロ御堂筋線「心斎橋駅」徒歩3分の立地に位置するビル。周辺オシャレなショップが建ち並ぶ活気あるエリアの美築物件。地下鉄も御堂筋・四ツ橋筋と近く、利便性富んだ物件です。2面採光がとれて明るい上に、無柱空間なので使い勝手も良いです。
- お電話でお問い合わせ(無料)
-
平日13時までのお問い合わせで
当日に物件をご紹介!
お電話の場合「物件番号:A205473」
をお伝えください
