お気に入りを解除しました。
グロース北浜ビルディング(旧今川)
物件番号:A102206
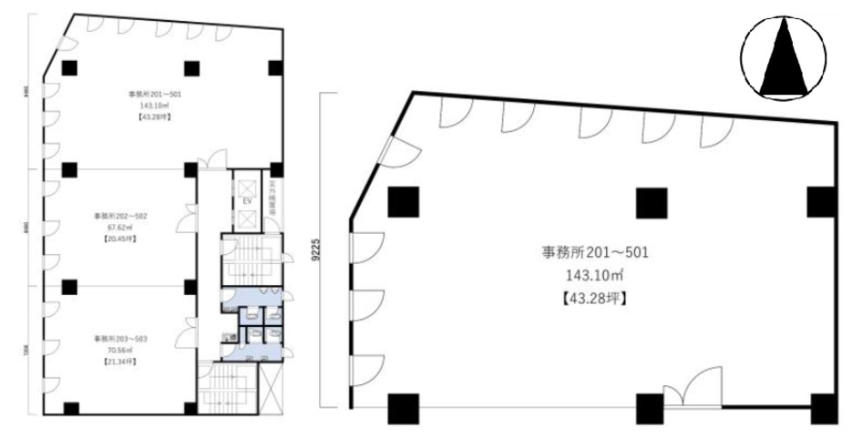
2階43.36坪

- この物件の賃料の価格帯(共益費込)
- 坪@12,001円~@15,000円
| 物件名 | グロース北浜ビルディング(旧今川) 【このビルのその他の募集階】 |
||
|---|---|---|---|
| 住所 | 大阪府大阪市中央区今橋2丁目2番17号 淀屋橋・北浜でよく検索されるその他の物件 |
||
| 構造(規模) | 鉄骨鉄筋コンクリート造地上9階地下1階建 | ||
| 築年月 | 1986年3月1日 | ||
| 坪数 |
43.36坪 |
||
| 階数 | 2階 | ||
| 保証金 | |||
| 敷金 | 賃料の10カ月分 | ||
| 礼金 | - | ||
| 沿線 最寄駅 |
地下鉄堺筋線 北浜駅 徒歩2分 (北浜駅の賃貸事務所) 京阪線(本線・中之島線) 北浜駅 徒歩2分 (北浜駅の賃貸事務所) 地下鉄御堂筋線 淀屋橋駅 徒歩5分 (淀屋橋駅の賃貸事務所) |
||
| アクセス | 新大阪駅まで電車14分 大阪駅梅田駅まで電車10分 関西空港まで電車54分、車58分 伊丹空港まで車25分 高速入口:環状線高麗橋入口 |
||
| EV基数 | 2基 | 人荷EV基数 | - |
| 空調タイプ | |||
| 備考 | ・駅近・角ビル ・新耐震基準適合・各室全て道路側 ・2018年リニューアル済み |
||

グロース北浜ビルディングは北浜駅徒歩2分、淀屋橋駅徒歩5分の立地に位置するビルです。各室すべて道路側なため採光が抜群です!!グレーのタイル張りの賃貸オフィスで、共用部は2018年にリニューアルしており、黒を基調としたシックな雰囲気になっています。1フロア85坪ですが約10坪位より分割可能なビルですので、様々にニーズに合わせられます。また、郵便局が目の前にあるため、非常に利便性が高いビルです。
- お電話でお問い合わせ(無料)
-
平日13時までのお問い合わせで
当日に物件をご紹介!
お電話の場合「物件番号:A102206」
をお伝えください
