お気に入りを解除しました。
日生ビル東館
物件番号:C505208
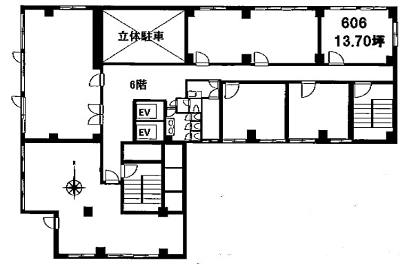
6階13.7坪

- この物件の賃料の価格帯(共益費込)
- 坪@12,001円~@15,000円
| 物件名 | 日生ビル東館 【このビルのその他の募集階】 |
||
|---|---|---|---|
| 住所 | 大阪府大阪市北区芝田2丁目2番13号 梅田でよく検索されるその他の物件 |
||
| 構造(規模) | 鉄骨鉄筋コンクリート造地上7階地下1階建 | ||
| 築年月 | 1965年7月 | ||
| 坪数 |
13.7坪 |
||
| 階数 | 6階 | ||
| 保証金 | 相談 | ||
| 敷金 | - | ||
| 礼金 | - | ||
| 沿線 最寄駅 |
JR東海道本線 大阪駅 徒歩3分 (大阪駅の賃貸事務所) 地下鉄御堂筋線 梅田駅 徒歩4分 (梅田駅の賃貸事務所) 地下鉄谷町線 東梅田駅 徒歩5分 (東梅田駅の賃貸事務所) |
||
| アクセス | 新大阪駅まで電車8分 大阪駅梅田駅まで電車3分 関西空港まで電車60分、車45分 伊丹空港まで車20分 高速入口:阪神高速環状線梅田入口 |
||
| EV基数 | 2基 | 人荷EV基数 | - |
| 空調タイプ | 個別 | ||
| 備考 | |||

JR、地下鉄、阪急の大阪駅・各梅田駅からすぐ、大通り沿いから中に入った立地にあるオフィスビル。基準階面積は150坪を超える大型ビルですが10坪台のコンパクトな貸室も多数あり、立地重視のスタートアップ企業にもオススメです。共用部のリニューアルや管理人も常駐しており安心してご入居できます。
- お電話でお問い合わせ(無料)
-
平日13時までのお問い合わせで
当日に物件をご紹介!
お電話の場合「物件番号:C505208」
をお伝えください
