お気に入りを解除しました。
大阪堂島浜タワー
物件番号:C304100
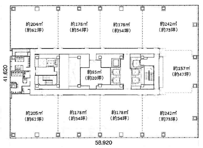
3階~15階532坪

- この物件の賃料の価格帯(共益費込)
- この部屋は成約済みです
| 物件名 | 大阪堂島浜タワー 【このビルのその他の募集階】 |
||
|---|---|---|---|
| 住所 | 大阪府大阪市北区堂島浜1丁目1番5号 梅田でよく検索されるその他の物件 |
||
| 構造(規模) | 鉄骨造地上32階地下一部鉄骨鉄筋コンクリート造2階塔屋1階建 | ||
| 築年月 | 2024年4月 | ||
| 坪数 |
532坪 |
||
| 階数 | 3階~15階 | ||
| 保証金 | - | ||
| 敷金 | - | ||
| 礼金 | - | ||
| 沿線 最寄駅 |
京阪線(本線・中之島線) 大江橋駅 徒歩2分 (大江橋駅の賃貸事務所) 地下鉄御堂筋線 淀屋橋駅 徒歩6分 (淀屋橋駅の賃貸事務所) 地下鉄谷町線 東梅田駅 徒歩7分 (東梅田駅の賃貸事務所) |
||
| アクセス | 新大阪駅まで電車15分 大阪駅梅田駅まで電車9分 関西空港まで電車59分、車45分 伊丹空港まで車20分 高速入口:環状線堂島・梅田入口 |
||
| EV基数 | 8基 | 人荷EV基数 | 1基 |
| 空調タイプ | 個別 | ||
| 備考 | ・天井高:2,800㎜・OA100㎜・LED照明・コンセント容量50VA/㎡・床過重500kg/㎡(ヘビーデューティゾーン800kg/㎡)・自然換気窓完備・非常用電源(72時間)・防潮板設置・防災備蓄倉庫・電気式冷暖房同時水冷ヒートポンプパッケージ方式 | ||

地域のシンボルであった「大阪三菱ビル」を、地域性、歴史性を踏まえ、
周辺の水辺空間と一体となった水都大阪の
新たなランドマークを目指した建て替え計画です。
オフィスはポスト・コロナ時代における
Well Being(健康、快適、便利)なワークプレイスの提供しています。
最上階には”4つ星ホテル”、建物南側には”堂島公園”を
一体化していますので訪客やリフレッシュにも活用いただけます。
南側の貸室内や展望台から御堂筋を一望するロケーションは圧巻です。
- お電話でお問い合わせ(無料)
-
平日13時までのお問い合わせで
当日に物件をご紹介!
お電話の場合「物件番号:C304100」
をお伝えください

