お気に入りを解除しました。
淀屋橋スクエア
物件番号:A101224
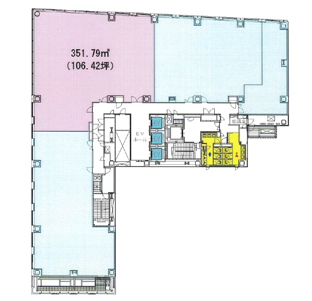
15階106坪

- この物件の賃料の価格帯(共益費込)
- この部屋は成約済みです
| 物件名 | 淀屋橋スクエア 【このビルのその他の募集階】 |
||
|---|---|---|---|
| 住所 | 大阪府大阪市中央区北浜2丁目6番18号 淀屋橋・北浜でよく検索されるその他の物件 |
||
| 構造(規模) | 鉄骨鉄筋コンクリート造地上18階地下1階搭屋1階建 | ||
| 築年月 | 2009年8月31日 | ||
| 坪数 |
106坪 |
||
| 階数 | 15階 | ||
| 保証金 | - | ||
| 敷金 | - | ||
| 礼金 | - | ||
| 沿線 最寄駅 |
地下鉄堺筋線 北浜駅 徒歩2分 (北浜駅の賃貸事務所) 地下鉄御堂筋線 淀屋橋駅 徒歩3分 (淀屋橋駅の賃貸事務所) 京阪線(本線・中之島線) 淀屋橋駅 徒歩3分 (淀屋橋駅の賃貸事務所) |
||
| アクセス | 新大阪駅まで電車10分 大阪駅梅田駅まで電車6分 関西空港まで電車52分、車46分 伊丹空港まで車25分 高速入口:環状線高麗橋入口 |
||
| EV基数 | 6基 | 人荷EV基数 | 1基 |
| 空調タイプ | 個別 | ||
| 備考 | ・駅直結・大通り沿い ・新耐震基準適合・制震構造 ・角ビル・非常用電源対策物件 ・無柱空間・天高2.8m |
||

淀屋橋スクエアビルは北浜駅徒歩2分、淀屋橋駅徒歩3分の2009年に完成した淀屋橋エリアを代表する大型ビル。公開空地が広く開放感のあるエントランスホールが来訪者に好印象を与えます。1フロア287坪と広い上、貸室内の天井高も2,800mmと大変高く、エレベーターは7基もあり諸設備のスペックにも申し分がありません。貸室の分割も希望面積に柔軟に対応できる可能性があります。
- お電話でお問い合わせ(無料)
-
平日13時までのお問い合わせで
当日に物件をご紹介!
お電話の場合「物件番号:A101224」
をお伝えください
