お気に入りを解除しました。
京阪神淀屋橋
物件番号:A102408
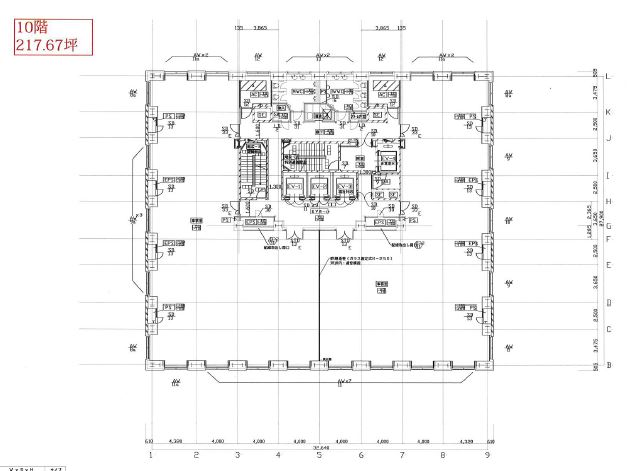
7階217.67坪
- この物件の賃料の価格帯(共益費込)
- この部屋は成約済みです
| 物件名 | 京阪神淀屋橋 【このビルのその他の募集階】 |
||
|---|---|---|---|
| 住所 | 大阪府大阪市中央区今橋4丁目4番7号 淀屋橋・北浜でよく検索されるその他の物件 |
||
| 構造(規模) | 鉄骨鉄筋コンクリート造地上11階地下1階建 | ||
| 築年月 | 2001年2月1日 | ||
| 坪数 |
217.67坪 |
||
| 階数 | 7階 | ||
| 保証金 | - | ||
| 敷金 | - | ||
| 礼金 | - | ||
| 沿線 最寄駅 |
地下鉄御堂筋線 淀屋橋駅 徒歩2分 (淀屋橋駅の賃貸事務所) 地下鉄四つ橋線 肥後橋駅 徒歩3分 (肥後橋駅の賃貸事務所) 京阪線(本線・中之島線) 淀屋橋駅 徒歩4分 (淀屋橋駅の賃貸事務所) |
||
| アクセス | 新大阪駅まで電車11分 大阪駅梅田駅まで電車6分 関西空港まで電車52分、車49分 伊丹空港まで車25分 高速入口:環状線堂島入口 |
||
| EV基数 | 3基 | 人荷EV基数 | 1基 |
| 空調タイプ | 個別 | ||
| 備考 | ・駅近・角ビル ・広い公開空地・新耐震基準適合 ・エレベーター4基・天高2.7m ・OA床下100mm |
||

京阪神淀屋橋ビルは、金融関係のオーナー所有らしい風格のある外観及びエントランスが印象的です。設備もハイスペックでオフィスは自由度が高い無柱空間です。天井高2.7m・全方向に設けられた窓がいつでも明るく開放的な空間を提供するほか、室内出入り口を6箇所設置。室内廊下を不要にし、スペースの有効活用を可能にします。また1フロア14ゾーンの個別空調や高性能の熱線反射ペアガラスを使用することで、快適さと低コストを実現。
- お電話でお問い合わせ(無料)
-
平日13時までのお問い合わせで
当日に物件をご紹介!
お電話の場合「物件番号:A102408」
をお伝えください
