お気に入りを解除しました。
イーグル
物件番号:O105101
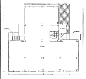
1階129.8坪

- この物件の賃料の価格帯(共益費込)
- この部屋は成約済みです
| 物件名 | イーグル 【このビルのその他の募集階】 |
||
|---|---|---|---|
| 住所 | 大阪府豊中市本町5丁目6番3号 でよく検索されるその他の物件 |
||
| 構造(規模) | 鉄筋コンクリート造地上3階建・地下1階付 | ||
| 築年月 | 1990年2月 | ||
| 坪数 |
129.8坪 |
||
| 階数 | 1階 | ||
| 保証金 | - | ||
| 敷金 | - | ||
| 礼金 | - | ||
| 沿線 最寄駅 |
|||
| アクセス | 新大阪駅まで電車33分 大阪駅梅田駅まで電車20分 関西空港まで電車90分、車70分 伊丹空港まで車8分 高速入口:阪神高速道路 豊中北出入口 |
||
| EV基数 | 1基 | 人荷EV基数 | - |
| 空調タイプ | 個別 | ||
| 備考 | 阪急宝塚線 豊中駅4分。フロア貸し切り。地下倉庫あり(約80㎡) | ||
- お電話でお問い合わせ(無料)
-
平日13時までのお問い合わせで
当日に物件をご紹介!
お電話の場合「物件番号:O105101」
をお伝えください
類似物件のご紹介
吹田市末広町 貸テナント
-
-
住所 大阪府吹田市末広町21番50号 交通 竣工 1989年5月 構造 鉄骨造陸屋根地上3階建

