お気に入りを解除しました。
サンビル京橋
物件番号:J103126
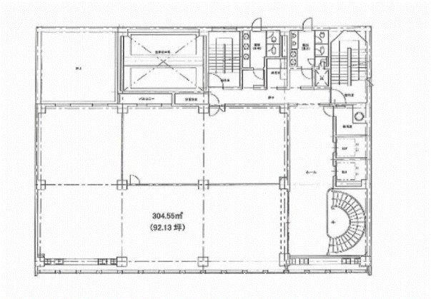
2階92.13坪

- この物件の賃料の価格帯(共益費込)
- この部屋は成約済みです
| 物件名 | サンビル京橋 【このビルのその他の募集階】 |
||
|---|---|---|---|
| 住所 | 大阪府大阪市都島区東野田町4丁目7番23号 OBP・京橋・ 森之宮でよく検索されるその他の物件 |
||
| 構造(規模) | 鉄骨鉄筋コンクリート造地上8階地下1階 | ||
| 築年月 | 1993年2月 | ||
| 坪数 |
92.13坪 |
||
| 階数 | 2階 | ||
| 保証金 | - | ||
| 敷金 | - | ||
| 礼金 | - | ||
| 沿線 最寄駅 |
JR大阪環状線 京橋駅 徒歩3分 (京橋駅の賃貸事務所) 京阪線(本線・中之島線) 京橋駅 徒歩3分 (京橋駅の賃貸事務所) 地下鉄長堀鶴見緑地線 京橋駅 徒歩2分 (京橋駅の賃貸事務所) |
||
| アクセス | 新大阪駅まで電車18分 大阪駅梅田駅まで電車11分 関西空港まで電車57分、車55分 伊丹空港まで車22分 高速入口:法円坂・高麗橋入口 |
||
| EV基数 | 2基 | 人荷EV基数 | - |
| 空調タイプ | 個別 | ||
| 備考 | |||

国道1号線沿いの大通り沿いにあるビルで視認性抜群。旧耐震ビルですが耐震補強、共用部のリニューアル工事も行われており安心してご入居頂けます。駐輪場もありので入居者の方には喜ばれています。
- お電話でお問い合わせ(無料)
-
平日13時までのお問い合わせで
当日に物件をご紹介!
お電話の場合「物件番号:J103126」
をお伝えください

