お気に入りを解除しました。
THE PEAK SHINSAIBASHI(旧 出光ナガホリ)
物件番号:A205322
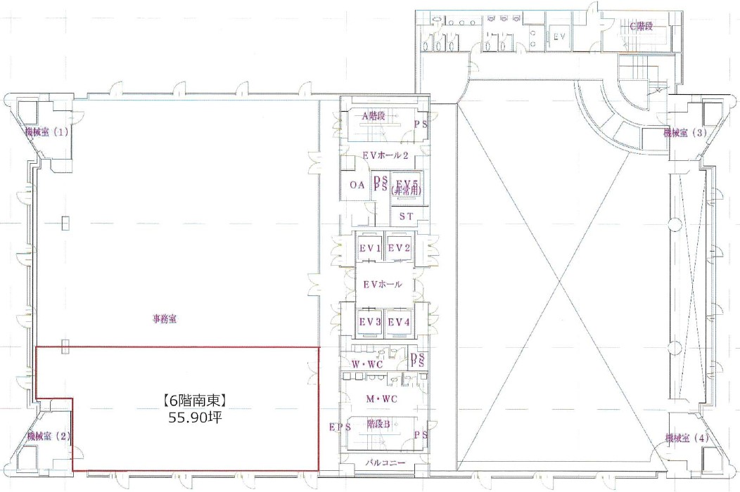
6階55.9坪

- この物件の賃料の価格帯(共益費込)
- 坪@20,001円~@30,000円
| 物件名 | THE PEAK SHINSAIBASHI(旧 出光ナガホリ) 【このビルのその他の募集階】 |
||
|---|---|---|---|
| 住所 | 大阪府大阪市中央区南船場3丁目4番26号 心斎橋・長堀橋でよく検索されるその他の物件 |
||
| 構造(規模) | 鉄骨鉄筋コンクリート造地上13階地下2階建 | ||
| 築年月 | 1989年10月31日 | ||
| 坪数 |
55.9坪 |
||
| 階数 | 6階 | ||
| 保証金 | |||
| 敷金 | 賃料の6カ月分 | ||
| 礼金 | - | ||
| 沿線 最寄駅 |
地下鉄御堂筋線 心斎橋駅 徒歩3分 (心斎橋駅の賃貸事務所) 地下鉄長堀鶴見緑地線 心斎橋駅 徒歩3分 (心斎橋駅の賃貸事務所) 地下鉄堺筋線 長堀橋駅 徒歩3分 (長堀橋駅の賃貸事務所) |
||
| アクセス | 新大阪駅まで電車15分 大阪駅梅田駅まで電車9分 関西空港まで電車50分、車48分 伊丹空港まで車25分 高速入口:環状線信濃橋・阿波座・長堀 |
||
| EV基数 | 4基 | 人荷EV基数 | 1基 |
| 空調タイプ | 集中+個別 | ||
| 備考 | |||
大阪メトロ御堂筋線「心斎橋駅」徒歩3分の立地に位置するビル。長堀通り沿い北側に立地し、東急ハンズ『心斎橋店』の東隣り、1階は出光のガソリンスタンドが入居しているため建物視認性の非常に高い物件です。目の前には『クリスタ長堀』の出入口もあり、地下道を通じて地下鉄線へのアクセスも容易です。ビルも基準階面積196坪で、エレベーター5基ありますので、グレード感が高いです。
- お電話でお問い合わせ(無料)
-
平日13時までのお問い合わせで
当日に物件をご紹介!
お電話の場合「物件番号:A205322」
をお伝えください
類似物件のご紹介
大阪市中央区南船場2丁目オフィスビル(リノベーション計画)
-
-
住所 大阪府大阪市中央区南船場2丁目12番8号 交通 地下鉄長堀鶴見緑地線 長堀橋駅 徒歩3分
地下鉄御堂筋線 心斎橋駅 徒歩4分
竣工 2009年2月 構造 地上11階建
大阪市中央区南船場2丁目オフィスビル(リノベーション計画)
-
-
住所 大阪府大阪市中央区南船場2丁目12番8号 交通 地下鉄長堀鶴見緑地線 長堀橋駅 徒歩3分
地下鉄御堂筋線 心斎橋駅 徒歩4分
竣工 2009年2月 構造 地上11階建

