お気に入りを解除しました。
本町ガーデンシティテラス
物件番号:A110127
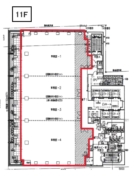
11階190.65坪

- この物件の賃料の価格帯(共益費込)
- この部屋は成約済みです
| 物件名 | 本町ガーデンシティテラス 【このビルのその他の募集階】 |
||
|---|---|---|---|
| 住所 | 大阪府大阪市中央区安土町3丁目5番13号 本町・堺筋本町でよく検索されるその他の物件 |
||
| 構造(規模) | 鉄骨造、一部鉄骨鉄筋コンクリート造地上19階、塔屋1階、地下2階 | ||
| 築年月 | 2023年3月 | ||
| 坪数 |
190.65坪 |
||
| 階数 | 11階 | ||
| 保証金 | - | ||
| 敷金 | - | ||
| 礼金 | - | ||
| 沿線 最寄駅 |
地下鉄御堂筋線 本町駅 徒歩1分 (本町駅の賃貸事務所) 地下鉄中央線 本町駅 徒歩3分 (本町駅の賃貸事務所) 地下鉄堺筋線 堺筋本町駅 徒歩4分 (堺筋本町駅の賃貸事務所) |
||
| アクセス | 新大阪駅まで電車17分 大阪駅梅田駅まで電車11分 関西空港まで電車48分、車48分 伊丹空港まで車23分 高速入口:環状線 信濃橋・阿波座 入口 |
||
| EV基数 | 6基 | 人荷EV基数 | 1基 |
| 空調タイプ | 個別 | ||
| 備考 | ・御堂筋に面しており存在感抜群 ・大阪メトロ「本町駅」1号出口直結。大阪メトロ3路線の 利用が可能で各都市へのアクセス最高 |
||

2023年3月竣工予定の御堂筋沿いの大型ハイグレードオフィス。御堂筋線「本町駅」直結の立地とグレート感は、他を寄せ付けない存在感があります。駅からは一度も地上に上がることなく、そのままオフィス会にエレベーターで移動できます。基準階面積約185坪のワンフロアー貸を基本に、30坪ずつの分割も相談可能です。上層階からの眺望は申し分なし。また、3階から9階の低層階には、リフレッシュスペースを作成できるほどのバルコニーがある特徴がある造りになっています。
- お電話でお問い合わせ(無料)
-
平日13時までのお問い合わせで
当日に物件をご紹介!
お電話の場合「物件番号:A110127」
をお伝えください

