お気に入りを解除しました。
新大阪ドイ
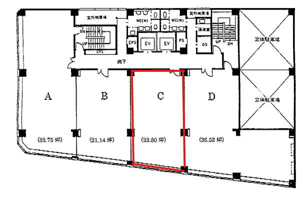
物件番号:D101715
2階22.8坪

- この物件の賃料の価格帯(共益費込)
- この部屋は成約済みです
| 物件名 | 新大阪ドイ 【このビルのその他の募集階】 |
||
|---|---|---|---|
| 住所 | 大阪府大阪市淀川区西中島7丁目5番25号 新大阪・西中島でよく検索されるその他の物件 |
||
| 構造(規模) | 鉄骨鉄筋コンクリート造地上10階建 | ||
| 築年月 | 1986年7月1日 | ||
| 坪数 |
22.8坪 |
||
| 階数 | 2階 | ||
| 保証金 | - | ||
| 敷金 | - | ||
| 礼金 | - | ||
| 沿線 最寄駅 |
地下鉄御堂筋線 新大阪駅 徒歩3分 (新大阪駅の賃貸事務所) 地下鉄御堂筋線 西中島南方駅 徒歩7分 (西中島南方駅の賃貸事務所) JR東海道本線 新大阪駅 徒歩7分 (新大阪駅の賃貸事務所) |
||
| アクセス | 大阪駅梅田駅まで電車5分 伊丹空港まで車20分 |
||
| EV基数 | 2基 | 人荷EV基数 | - |
| 空調タイプ | 個別 | ||
| 備考 | |||
地下鉄御堂筋線新大阪駅徒歩1分、新御堂筋に面する抜群の立地のオフィスビル。落ち着いた雰囲気で重厚感あるエントランスが魅力です。設備はエレベーターは2基設置され、管理人も常駐しており快適にご入居頂けます。ワンフロア約130坪、最小坪数は40坪の貸室のご提案が可能です。
- お電話でお問い合わせ(無料)
-
平日13時までのお問い合わせで
当日に物件をご紹介!
お電話の場合「物件番号:D101715」
をお伝えください
