お気に入りを解除しました。
堂北ダイビル
物件番号:C303105
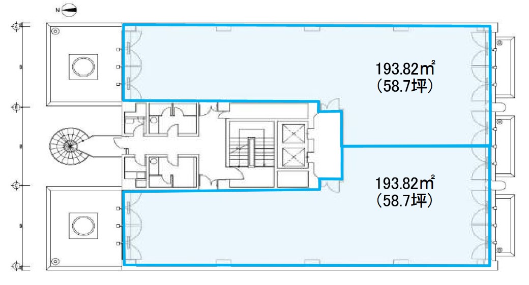
2階58.7坪

- この物件の賃料の価格帯(共益費込)
- この部屋は成約済みです
| 物件名 | 堂北ダイビル 【このビルのその他の募集階】 |
||
|---|---|---|---|
| 住所 | 大阪府大阪市北区堂島1丁目2番5号 梅田・西梅田・堂島・福島でよく検索されるその他の物件 |
||
| 構造(規模) | 鉄骨鉄筋コンクリート造地上7階地下1階建 | ||
| 築年月 | 1986年3月1日 | ||
| 坪数 |
58.7坪 |
||
| 階数 | 2階 | ||
| 保証金 | - | ||
| 敷金 | - | ||
| 礼金 | - | ||
| 沿線 最寄駅 |
地下鉄谷町線 東梅田駅 徒歩6分 (東梅田駅の賃貸事務所) 地下鉄御堂筋線 淀屋橋駅 徒歩6分 (淀屋橋駅の賃貸事務所) 京阪線(本線・中之島線) 大江橋駅 徒歩3分 (大江橋駅の賃貸事務所) |
||
| アクセス | 新大阪駅まで電車14分 大阪駅梅田駅まで電車8分 関西空港まで電車59分、車45分 伊丹空港まで車20分 高速入口:環状線堂島・梅田入口 |
||
| EV基数 | 2基 | 人荷EV基数 | - |
| 空調タイプ | 集中+個別 | ||
| 備考 | 基準階132.12坪(436.76㎡)の大型ビルです。分割区画は40坪前後になります。セントラル空調と個別空調の併用となっておりますので、空調費用の効率が良いです。清潔感のあるエントランスにはソファーが設置されており、待ち時間にご利用になるのに便利です。 |
||

清潔感のあるエントランスとモダンな外観と共用部が控えめながら凛とした存在感のあるオフィスビル。
古くからいらっしゃる企業様が多く、落ち着いた雰囲気があります。北新地に近い立地ですが、周辺にはANAクラウンホテルや新ダイビルがあり、ビジネスマンの多いエリアです。
- お電話でお問い合わせ(無料)
-
平日13時までのお問い合わせで
当日に物件をご紹介!
お電話の場合「物件番号:C303105」
をお伝えください
