お気に入りを解除しました。
北浜永和
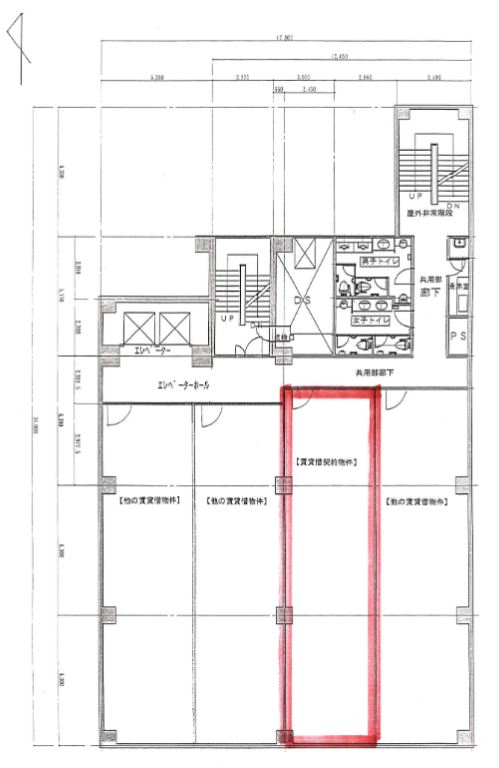
物件番号:A101310
3階22.89坪
- この物件の賃料の価格帯(共益費込)
- この部屋は成約済みです
| 物件名 | 北浜永和 【このビルのその他の募集階】 |
||
|---|---|---|---|
| 住所 | 大阪府大阪市中央区北浜3丁目2番12号 淀屋橋・北浜でよく検索されるその他の物件 |
||
| 構造(規模) | 鉄筋鉄骨コンクリート造地上7階地下2階建 | ||
| 築年月 | 1964年9月1日 | ||
| 坪数 |
22.89坪 |
||
| 階数 | 3階 | ||
| 保証金 | - | ||
| 敷金 | - | ||
| 礼金 | - | ||
| 沿線 最寄駅 |
京阪線(本線・中之島線) 淀屋橋駅 徒歩1分 (淀屋橋駅の賃貸事務所) 地下鉄御堂筋線 淀屋橋駅 徒歩2分 (淀屋橋駅の賃貸事務所) 地下鉄堺筋線 北浜駅 徒歩4分 (北浜駅の賃貸事務所) |
||
| アクセス | 新大阪駅まで電車8分 大阪駅梅田駅まで電車5分 関西空港まで電車53分、車52分 伊丹空港まで車25分 高速入口:環状線高麗橋入口 |
||
| EV基数 | 2基 | 人荷EV基数 | - |
| 空調タイプ | 個別 | ||
| 備考 | ・駅直結・2014年リニューアル済み ・天高2.6m・1階コンビニ有り |
||

北浜永和ビルは淀屋橋駅・北浜駅への連絡地下道に直結した好立地のオフィスビルです。雨の日も濡れずに通勤ができる利便性の高いアクセス環境。昭和39年築ですがリニューアルされ管理がよく手頃なコストなので入居率が高い物件です。外観はカーテンウォールで美築。
- お電話でお問い合わせ(無料)
-
平日13時までのお問い合わせで
当日に物件をご紹介!
お電話の場合「物件番号:A101310」
をお伝えください
