お気に入りを解除しました。
ナカヒロ
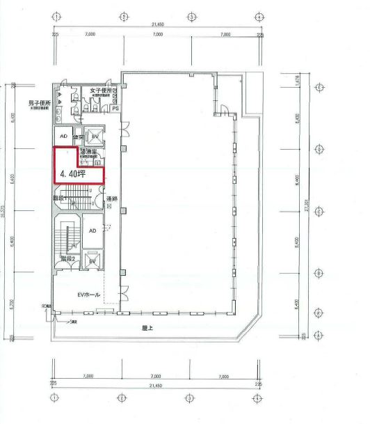
物件番号:A110316
地下1階4.4坪
- この物件の賃料の価格帯(共益費込)
- 倉庫使用となります
| 物件名 | ナカヒロ 【このビルのその他の募集階】 |
||
|---|---|---|---|
| 住所 | 大阪府大阪市中央区安土町3丁目5番6号 本町・堺筋本町でよく検索されるその他の物件 |
||
| 構造(規模) | 鉄筋コンクリート造地上6階地下位階建 | ||
| 築年月 | 1963年5月 | ||
| 坪数 |
4.4坪 |
||
| 階数 | 地下1階 | ||
| 保証金 | |||
| 敷金 | 賃料の10カ月分 | ||
| 礼金 | - | ||
| 沿線 最寄駅 |
地下鉄御堂筋線 本町駅 徒歩1分 (本町駅の賃貸事務所) 地下鉄中央線 本町駅 徒歩3分 (本町駅の賃貸事務所) 地下鉄堺筋線 堺筋本町駅 徒歩4分 (堺筋本町駅の賃貸事務所) |
||
| アクセス | 新大阪駅まで電車18分 大阪駅梅田駅まで電車12分 関西空港まで電車48分、車48分 伊丹空港まで車25分 高速入口:環状線信濃橋・阿波座入口 |
||
| EV基数 | 2基 | 人荷EV基数 | - |
| 空調タイプ | 個別 | ||
| 備考 | |||

御堂筋から少し東に入った角地に位置するオフィスビルです。外観は石張りのシャープさと重厚感を併せ持った品のある印象です。もと自社ビルとして使用されていたものを賃貸として貸出しています。1階にはウエディングも可能な大型ビアレストランが入居中。
- お電話でお問い合わせ(無料)
-
平日13時までのお問い合わせで
当日に物件をご紹介!
お電話の場合「物件番号:A110316」
をお伝えください
