お気に入りを解除しました。
若杉ビル
物件番号:C504130
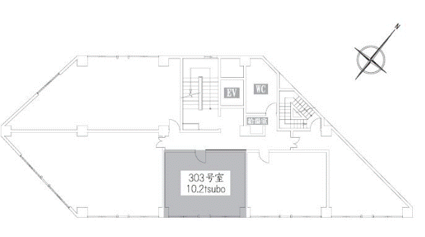
3階10.2坪

- この物件の賃料の価格帯(共益費込)
- この部屋は成約済みです
| 物件名 | 若杉ビル 【このビルのその他の募集階】 |
||
|---|---|---|---|
| 住所 | 大阪府大阪市北区中津1丁目18番18号 梅田でよく検索されるその他の物件 |
||
| 構造(規模) | 鉄骨鉄筋コンクリート造地上10階建 | ||
| 築年月 | 1972年 | ||
| 坪数 |
10.2坪 |
||
| 階数 | 3階 | ||
| 保証金 | - | ||
| 敷金 | - | ||
| 礼金 | - | ||
| 沿線 最寄駅 |
地下鉄御堂筋線 中津駅 徒歩2分 (中津駅の賃貸事務所) 地下鉄御堂筋線 梅田駅 徒歩10分 (梅田駅の賃貸事務所) JR東海道本線 大阪駅 徒歩10分 (大阪駅の賃貸事務所) |
||
| アクセス | 新大阪駅まで電車16分 大阪駅梅田駅まで電車7分 関西空港まで電車60分、車45分 伊丹空港まで車20分 高速入口:環状線南森町・扇町入口 |
||
| EV基数 | 1基 | 人荷EV基数 | - |
| 空調タイプ | 個別 | ||
| 備考 | |||

大阪メトロ御堂筋線「中津駅」徒歩2分の立地に位置するビル。城北公園通りに面する視認性が高いビルです。外壁パネルは省エネを考慮した断熱加工を施し、ペアガラスを採用。同じく省エネを考慮したエアコン改修や共用廊下のLED化も実施されています。その他、トイレ・給湯室を全面リニューアルし、快適なオフィス環境を追及しています。貸室は8坪~70坪まで対応できるハイスペックなビルです。
- お電話でお問い合わせ(無料)
-
平日13時までのお問い合わせで
当日に物件をご紹介!
お電話の場合「物件番号:C504130」
をお伝えください

