お気に入りを解除しました。
HK今橋
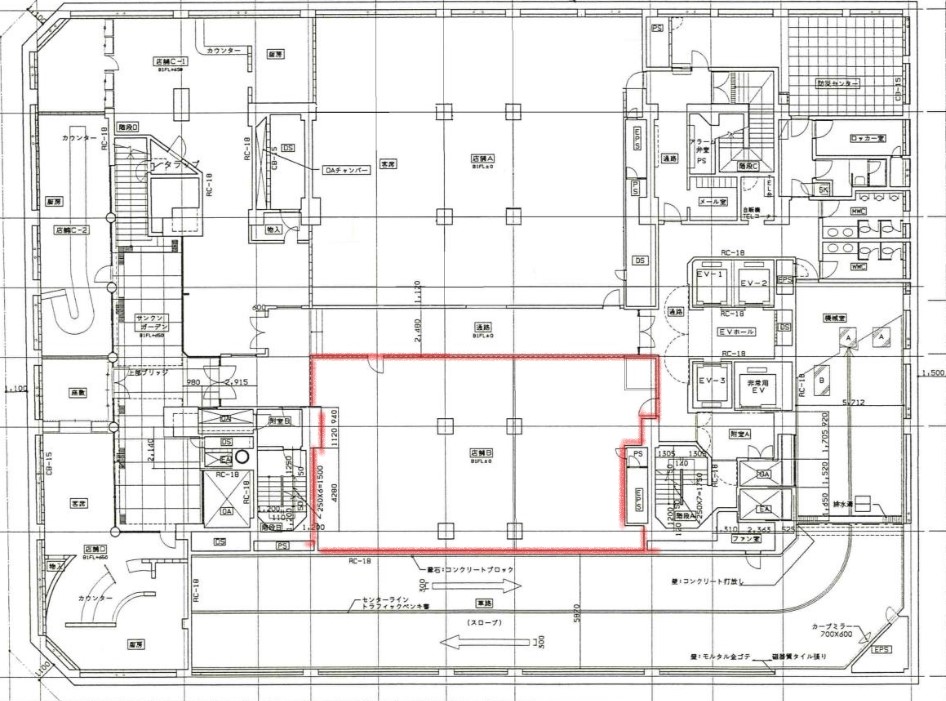
物件番号:A102405
地下1階52.5坪

- この物件の賃料の価格帯(共益費込)
- この部屋は成約済みです
| 物件名 | HK今橋 【このビルのその他の募集階】 |
||
|---|---|---|---|
| 住所 | 大阪府大阪市中央区今橋4丁目3番18号 淀屋橋・北浜でよく検索されるその他の物件 |
||
| 構造(規模) | 鉄骨鉄筋コンクリート造地上12階地下3階建 | ||
| 築年月 | 1990年10月1日 | ||
| 坪数 |
52.5坪 |
||
| 階数 | 地下1階 | ||
| 保証金 | - | ||
| 敷金 | - | ||
| 礼金 | - | ||
| 沿線 最寄駅 |
地下鉄御堂筋線 淀屋橋駅 徒歩1分 (淀屋橋駅の賃貸事務所) 京阪線(本線・中之島線) 淀屋橋駅 徒歩2分 (淀屋橋駅の賃貸事務所) 地下鉄四つ橋線 肥後橋駅 徒歩4分 (肥後橋駅の賃貸事務所) |
||
| アクセス | 新大阪駅まで電車12分 大阪駅梅田駅まで電車7分 関西空港まで電車50分、車49分 伊丹空港まで車25分 高速入口:環状線 堂島 入口 |
||
| EV基数 | 3基 | 人荷EV基数 | - |
| 空調タイプ | 個別 | ||
| 備考 | ・定期借家契約3年(再契約可) ・駅近・角ビル ・新耐震基準適合・広い公開空地 ・エレベーター4基・天井高2.8m ・貸会議室有り・駐輪場有り |
||

HK今橋ビルは淀屋橋駅と肥後橋駅の間にある好立地美装ビルです。公開空地が広くとられ落ち着いた佇まいです。基準階面積は150坪、エレベーターは3基とグレード感がある物件。地下には倉庫も備えているので便利です。駐車場も44台とめられるので、お車をよく使われる営業所におすすめです。また、警備は有人警備と機械警備を併用してますので安心感があります。
- お電話でお問い合わせ(無料)
-
平日13時までのお問い合わせで
当日に物件をご紹介!
お電話の場合「物件番号:A102405」
をお伝えください
