お気に入りを解除しました。
MF桜橋
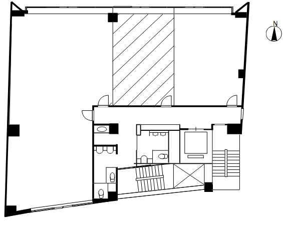
物件番号:C302217
2階10.28坪

- この物件の賃料の価格帯(共益費込)
- 相談
| 物件名 | MF桜橋 【このビルのその他の募集階】 続きを表示 ▼ |
||
|---|---|---|---|
| 住所 | 大阪府大阪市北区曽根崎新地2丁目6番23号 西梅田・堂島・福島でよく検索されるその他の物件 |
||
| 構造(規模) | 鉄骨造地上10階地下1階建 | ||
| 築年月 | 1998年1月1日 | ||
| 坪数 |
10.28坪 |
||
| 階数 | 2階 | ||
| 保証金 | |||
| 敷金 | 相談 | ||
| 礼金 | - | ||
| 沿線 最寄駅 |
地下鉄四つ橋線 西梅田駅 徒歩3分 (西梅田駅の賃貸事務所) JR大阪環状線 大阪駅 徒歩6分 (大阪駅の賃貸事務所) JR東西線 北新地駅 徒歩4分 (北新地駅の賃貸事務所) |
||
| アクセス | 新大阪駅まで電車12分 大阪駅梅田駅まで電車6分 関西空港まで電車61分、車45分 伊丹空港まで車20分 高速入口:環状線堂島・梅田入口 |
||
| EV基数 | 1基 | 人荷EV基数 | - |
| 空調タイプ | 個別 | ||
| 備考 | |||

西梅田エリア・2号線に面したカーテンウォールの外観が特徴のオフィスビル。1階にはコンビニが入居中で大変便利です。ワンフロア約30坪で10坪代の分割区画も多数あり、スタートアップ企業の貸室にピッタリです。
- お電話でお問い合わせ(無料)
-
平日13時までのお問い合わせで
当日に物件をご紹介!
お電話の場合「物件番号:C302217」
をお伝えください
