お気に入りを解除しました。
井上
物件番号:A106106
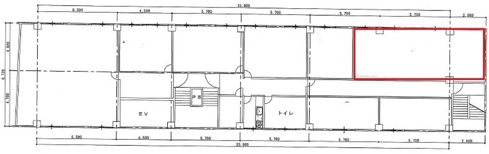
4階8坪

- この物件の賃料の価格帯(共益費込)
- この部屋は成約済みです
| 物件名 | 井上 【このビルのその他の募集階】 |
||
|---|---|---|---|
| 住所 | 大阪府大阪市中央区平野町1丁目5番9号 淀屋橋・北浜でよく検索されるその他の物件 |
||
| 構造(規模) | 鉄筋コンクリート造地上8階建 | ||
| 築年月 | 1973年11月1日 | ||
| 坪数 |
8坪 |
||
| 階数 | 4階 | ||
| 保証金 | - | ||
| 敷金 | - | ||
| 礼金 | - | ||
| 沿線 最寄駅 |
地下鉄堺筋線 北浜駅 徒歩3分 (北浜駅の賃貸事務所) 地下鉄堺筋線 堺筋本町駅 徒歩6分 (堺筋本町駅の賃貸事務所) 京阪線(本線・中之島線) 北浜駅 徒歩6分 (北浜駅の賃貸事務所) |
||
| アクセス | 新大阪駅まで電車18分 大阪駅梅田駅まで電車11分 関西空港まで電車57分、車53分 伊丹空港まで車25分 高速入口:環状線高麗橋入口 |
||
| EV基数 | 2基 | 人荷EV基数 | - |
| 空調タイプ | 個別 | ||
| 備考 | ・天井高2.7m ・駐輪場有り |
||

井上ビルは、落ち着いた周辺環境にあるオフィスビルです。前の歩道には植樹がなされオフィス街にいながら緑を感じることができます。ビルは管理が行き届いており入居者も来客にも好印象を与えます。空調費が賃料に含まれているのでコストを見直したいテナント様にオススメです。
- お電話でお問い合わせ(無料)
-
平日13時までのお問い合わせで
当日に物件をご紹介!
お電話の場合「物件番号:A106106」
をお伝えください

