お気に入りを解除しました。
The Place
物件番号:A501166
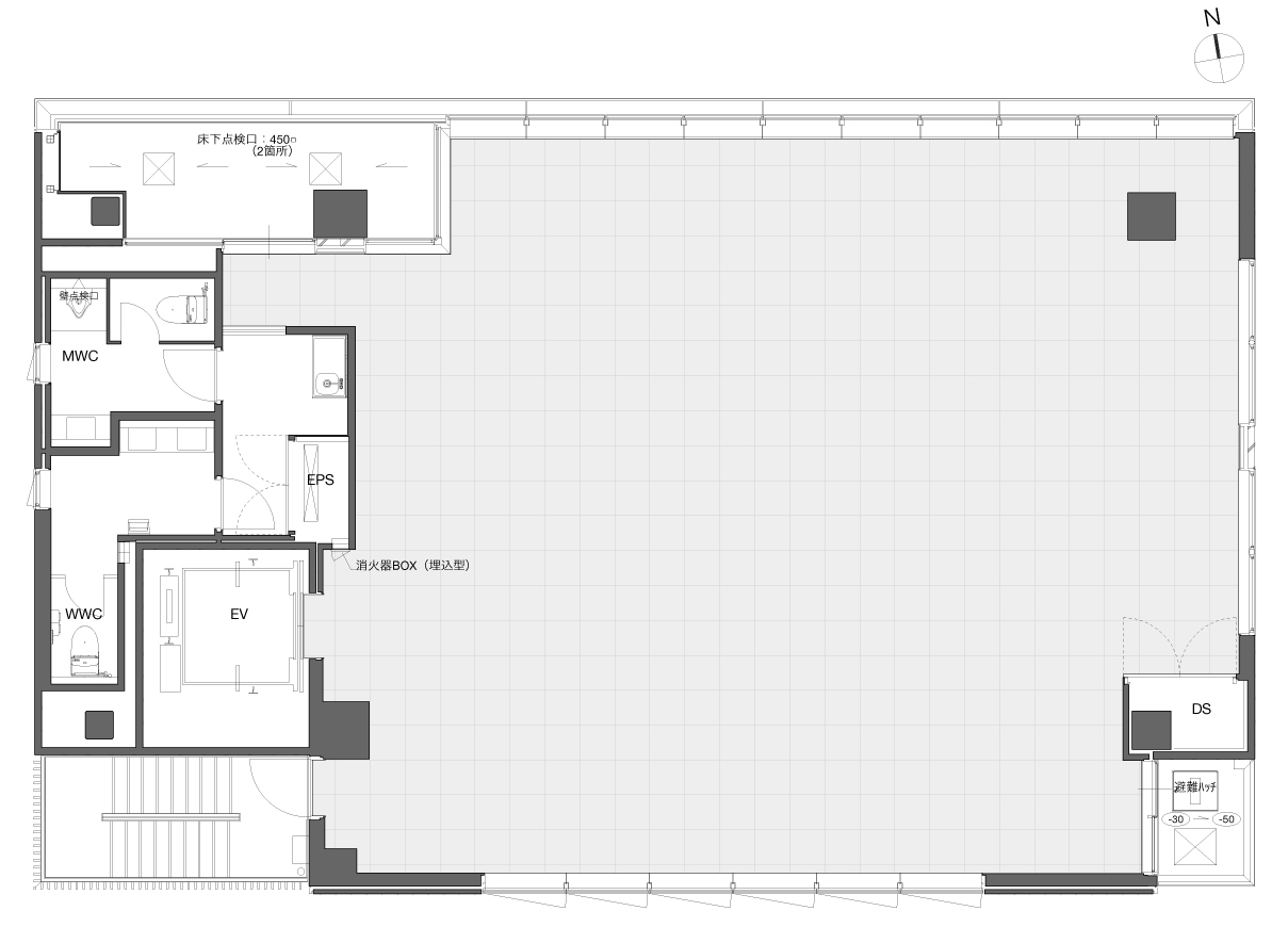
7階50.2坪

- この物件の賃料の価格帯(共益費込)
- この部屋は成約済みです
| 物件名 | The Place 【このビルのその他の募集階】 |
||
|---|---|---|---|
| 住所 | 大阪府大阪市中央区西心斎橋1丁目13番18号 心斎橋・長堀橋・四ツ橋でよく検索されるその他の物件 |
||
| 構造(規模) | 鉄骨造陸屋根9階建 | ||
| 築年月 | 2020年12月1日 | ||
| 坪数 |
50.2坪 |
||
| 階数 | 7階 | ||
| 保証金 | - | ||
| 敷金 | - | ||
| 礼金 | - | ||
| 沿線 最寄駅 |
地下鉄御堂筋線 心斎橋駅 徒歩2分 (心斎橋駅の賃貸事務所) 地下鉄四つ橋線 四ツ橋駅 徒歩2分 (四ツ橋駅の賃貸事務所) 地下鉄長堀鶴見緑地線 心斎橋駅 徒歩1分 (心斎橋駅の賃貸事務所) |
||
| アクセス | 新大阪駅まで電車127分 大阪駅梅田駅まで電車8分 関西空港まで電車46分、車45分 伊丹空港まで車20分 高速入口:阪神高速環状線四ツ橋・湊町入口 |
||
| EV基数 | 1基 | 人荷EV基数 | - |
| 空調タイプ | 個別 | ||
| 備考 | 1Fは受付とカフェスペース及びワークスペース、2Fはワークスペース及びコワーキング・3Fシェアオフィス(個室タイプ)、4Fはスタートアップオフィス(オフィス家具・内装付)、5F~9Fは通常オフィス、Roof Top(屋上)はリフレッシュコーナー。4F~9Fは天高3m・南北2面採光です。 |
||

多様なワークスタイルに対応可能なプランニングとデザインを取り入れた複合オフィスです、
百聞は一見に如かずです是非一度ご内覧ください。
- お電話でお問い合わせ(無料)
-
平日13時までのお問い合わせで
当日に物件をご紹介!
お電話の場合「物件番号:A501166」
をお伝えください

