お気に入りを解除しました。
船場ダイヤモンド
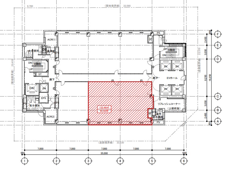
物件番号:A201201
12階40.06坪

- この物件の賃料の価格帯(共益費込)
- 坪@15,001円~@20,000円
| 物件名 | 船場ダイヤモンド 【このビルのその他の募集階】 |
||
|---|---|---|---|
| 住所 | 大阪府大阪市中央区久太郎町2丁目1番30号 本町・堺筋本町でよく検索されるその他の物件 |
||
| 構造(規模) | 鉄骨鉄筋コンクリート造地上15階地下2階建 | ||
| 築年月 | 1995年5月1日 | ||
| 坪数 |
40.06坪 |
||
| 階数 | 12階 | ||
| 保証金 | |||
| 敷金 | 賃料の12カ月分 | ||
| 礼金 | - | ||
| 沿線 最寄駅 |
地下鉄堺筋線 堺筋本町駅 徒歩1分 (堺筋本町駅の賃貸事務所) 地下鉄中央線 堺筋本町駅 徒歩1分 (堺筋本町駅の賃貸事務所) 地下鉄御堂筋線 本町駅 徒歩6分 (本町駅の賃貸事務所) |
||
| アクセス | 新大阪駅まで電車16分 大阪駅梅田駅まで電車10分 関西空港まで電車50分、車45分 伊丹空港まで車20分 高速入口:環状線信濃橋・阿波座・長堀 |
||
| EV基数 | 4基 | 人荷EV基数 | 1基 |
| 空調タイプ | 集中+個別 | ||
| 備考 | |||

中央大通りと堺筋の角地に建つ大型オフィスビルです。1階には三菱UFJ銀行が入居中の角ビルで、視認性がありわかりやすい立地です。大阪メトロ堺筋本町駅の10号出口のすぐ目の前で、アクセスもよく、立地とグレードを兼ね備えています。
- お電話でお問い合わせ(無料)
-
平日13時までのお問い合わせで
当日に物件をご紹介!
お電話の場合「物件番号:A201201」
をお伝えください
