お気に入りを解除しました。
Vianode SHIN-OSAKA(旧GRANODE新大阪)
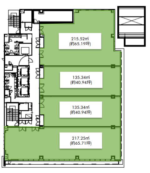
物件番号:D202117
11階65.2坪
- この物件の賃料の価格帯(共益費込)
- この部屋は成約済みです
| 物件名 | Vianode SHIN-OSAKA(旧GRANODE新大阪) 【このビルのその他の募集階】 |
||
|---|---|---|---|
| 住所 | 大阪府大阪市淀川区西宮原1丁目8番10号 新大阪・西中島でよく検索されるその他の物件 |
||
| 構造(規模) | 鉄骨造地上11階建 | ||
| 築年月 | 2022年2月 | ||
| 坪数 |
65.2坪 |
||
| 階数 | 11階 | ||
| 保証金 | - | ||
| 敷金 | - | ||
| 礼金 | - | ||
| 沿線 最寄駅 |
地下鉄御堂筋線 新大阪駅 徒歩6分 (新大阪駅の賃貸事務所) JR東海道本線 新大阪駅 徒歩6分 (新大阪駅の賃貸事務所) |
||
| アクセス | 新大阪駅まで電車6分 大阪駅梅田駅まで電車10分 関西空港まで電車60分、車50分 伊丹空港まで車25分 高速入口:阪神高速11号池田線線加島入口 |
||
| EV基数 | 3基 | 人荷EV基数 | 1基 |
| 空調タイプ | 個別 | ||
| 備考 | |||
- お電話でお問い合わせ(無料)
-
平日13時までのお問い合わせで
当日に物件をご紹介!
お電話の場合「物件番号:D202117」
をお伝えください

