お気に入りを解除しました。
東栄
物件番号:A103207
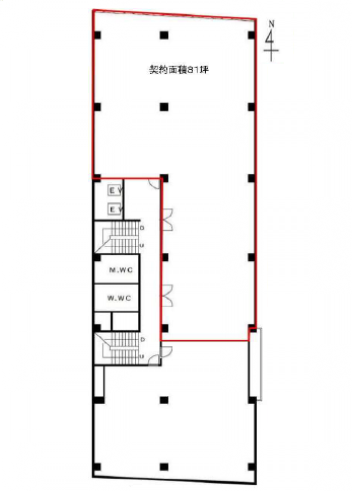
4階81坪

- この物件の賃料の価格帯(共益費込)
- この部屋は成約済みです
| 物件名 | 東栄 【このビルのその他の募集階】 |
||
|---|---|---|---|
| 住所 | 大阪府大阪市中央区高麗橋2丁目2番7号 淀屋橋・北浜でよく検索されるその他の物件 |
||
| 構造(規模) | 鉄筋コンクリート造地上7階地下2階建 | ||
| 築年月 | 1964年12月1日 | ||
| 坪数 |
81坪 |
||
| 階数 | 4階 | ||
| 保証金 | - | ||
| 敷金 | - | ||
| 礼金 | - | ||
| 沿線 最寄駅 |
地下鉄堺筋線 北浜駅 徒歩2分 (北浜駅の賃貸事務所) 京阪線(本線・中之島線) 北浜駅 徒歩2分 (北浜駅の賃貸事務所) 地下鉄御堂筋線 淀屋橋駅 徒歩3分 (淀屋橋駅の賃貸事務所) |
||
| アクセス | 新大阪駅まで電車11分 大阪駅梅田駅まで電車7分 関西空港まで電車55分、車48分 伊丹空港まで車25分 高速入口:環状線高麗橋入口 |
||
| EV基数 | 2基 | 人荷EV基数 | - |
| 空調タイプ | 個別 | ||
| 備考 | ・駅近・駐輪場有り ・2012年共用部リニューアル済み |
||

東栄ビルは大阪メトロ堺筋線大阪メトロ堺筋線北浜駅から徒歩2分の好立地ビル。築年数は経っていますが、エントランスをリニューアルされているので、おしゃれな雰囲気となっています。また、基準階面積が117坪ありますので、外からの見栄えもします。日中は守衛が常駐しているため、ビルの管理は万全です。
- お電話でお問い合わせ(無料)
-
平日13時までのお問い合わせで
当日に物件をご紹介!
お電話の場合「物件番号:A103207」
をお伝えください

