お気に入りを解除しました。
大月アネックス
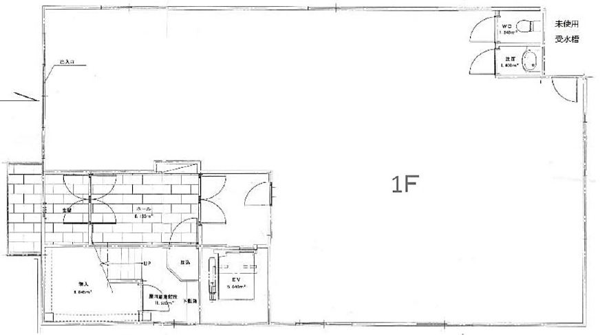
物件番号:J105102
1階37.53坪
- この物件の賃料の価格帯(共益費込)
- この部屋は成約済みです
| 物件名 | 大月アネックス 【このビルのその他の募集階】 |
||
|---|---|---|---|
| 住所 | 大阪府大阪市都島区大東町1丁目10番9号 OBP・京橋・ 森之宮でよく検索されるその他の物件 |
||
| 構造(規模) | 鉄骨造地上5階建 | ||
| 築年月 | 1991年4月 | ||
| 坪数 |
37.53坪 |
||
| 階数 | 1階 | ||
| 保証金 | - | ||
| 敷金 | - | ||
| 礼金 | - | ||
| 沿線 最寄駅 |
|||
| アクセス | 新大阪駅まで電車12分 大阪駅梅田駅まで電車20分 関西空港まで電車83分、車57分 伊丹空港まで車34分 高速入口:阪神高速12号守口線都島入口 |
||
| EV基数 | 1基 | 人荷EV基数 | - |
| 空調タイプ | 個別 | ||
| 備考 | |||
- お電話でお問い合わせ(無料)
-
平日13時までのお問い合わせで
当日に物件をご紹介!
お電話の場合「物件番号:J105102」
をお伝えください

