お気に入りを解除しました。
清和梅田
物件番号:C206211
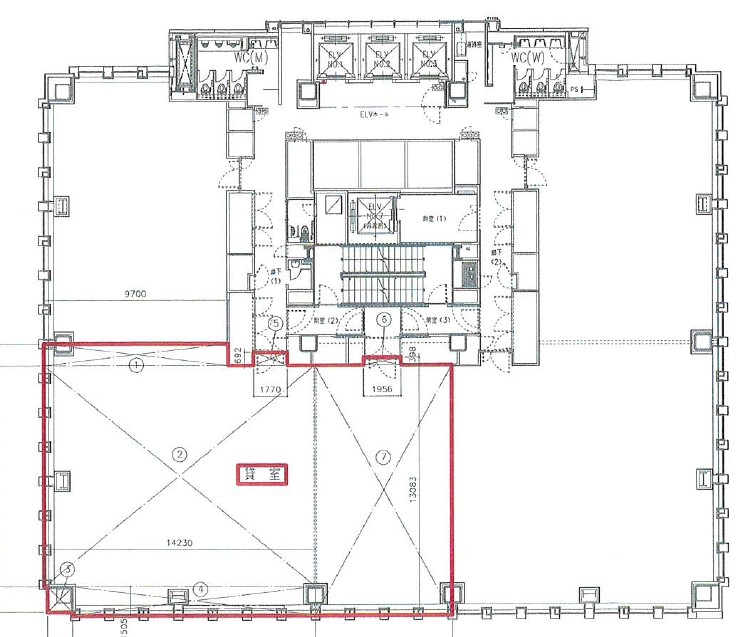
9階88.62坪

- この物件の賃料の価格帯(共益費込)
- 坪@30,001円以上
| 物件名 | 清和梅田 【このビルのその他の募集階】 |
||
|---|---|---|---|
| 住所 | 大阪府大阪市北区曽根崎2丁目12番7号 梅田でよく検索されるその他の物件 |
||
| 構造(規模) | 鉄骨鉄筋コンクリート造地下2階地上21階建 | ||
| 築年月 | 2015年4月1日 | ||
| 坪数 |
88.62坪 |
||
| 階数 | 9階 | ||
| 保証金 | |||
| 敷金 | 賃料の12カ月分 | ||
| 礼金 | - | ||
| 沿線 最寄駅 |
地下鉄谷町線 東梅田駅 徒歩1分 (東梅田駅の賃貸事務所) 地下鉄御堂筋線 梅田駅 徒歩3分 (梅田駅の賃貸事務所) JR大阪環状線 大阪駅 徒歩4分 (大阪駅の賃貸事務所) |
||
| アクセス | 新大阪駅まで電車12分 大阪駅梅田駅まで電車6分 関西空港まで電車58分、車45分 伊丹空港まで車20分 高速入口:環状線堂島・阪神高速梅田入口 |
||
| EV基数 | 4基 | 人荷EV基数 | - |
| 空調タイプ | 個別 | ||
| 備考 | BCP対策・・・2ヵ所の配電所より本線、予備選の2系統で受電、発電気完備。耐震・・・長周期振動に強い集中制震構造。天高3m。日祝開館。 | ||

平成27年3月大阪駅前に完成!!
高耐震性、BCP対応機能など耐震対策を重視!
セキュリティ、省エネ対策などオフィス機能も充実しています。
- お電話でお問い合わせ(無料)
-
平日13時までのお問い合わせで
当日に物件をご紹介!
お電話の場合「物件番号:C206211」
をお伝えください

