お気に入りを解除しました。
アトレ中津
物件番号:C504137
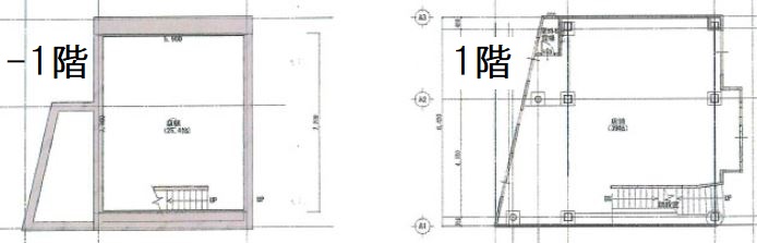
地下1階+地上1階33坪
- この物件の賃料の価格帯(共益費込)
- 坪@15,001円~@20,000円
| 物件名 | アトレ中津 【このビルのその他の募集階】 |
||
|---|---|---|---|
| 住所 | 大阪府大阪市北区中津1丁目10番12号 梅田でよく検索されるその他の物件 |
||
| 構造(規模) | 鉄骨鉄筋コンクリート造地上5階地下1階建 | ||
| 築年月 | 1985年6月 | ||
| 坪数 |
33坪 |
||
| 階数 | 地下1階+地上1階 | ||
| 保証金 | |||
| 敷金 | 賃料の6カ月分 | ||
| 礼金 | 賃料の3カ月分 | ||
| 沿線 最寄駅 |
地下鉄御堂筋線 中津駅 徒歩2分 (中津駅の賃貸事務所) 地下鉄御堂筋線 梅田駅 徒歩11分 (梅田駅の賃貸事務所) JR大阪環状線 大阪駅 徒歩12分 (大阪駅の賃貸事務所) |
||
| アクセス | 新大阪駅まで電車8分 大阪駅梅田駅まで電車12分 関西空港まで電車67分、車50分 伊丹空港まで車20分 高速入口:環状線南森町・扇町入口 |
||
| EV基数 | - | 人荷EV基数 | - |
| 空調タイプ | 個別 | ||
| 備考 | ・駅近 ・阪急京都線『中津』駅徒歩4分 ・新耐震基準適合 |
||

地下鉄御堂筋線『中津』駅から徒歩2分と、駅近な好立地ビルです。阪急京都線『中津』駅からも徒歩4分程と、2路線利用可能です。大阪駅へも徒歩12分程でアクセス可能です。近隣にはコンビニや飲食店、クリニックに花屋と様々あります。
- お電話でお問い合わせ(無料)
-
平日13時までのお問い合わせで
当日に物件をご紹介!
お電話の場合「物件番号:C504137」
をお伝えください

