お気に入りを解除しました。
住友ビルディング第4号館
物件番号:A101408
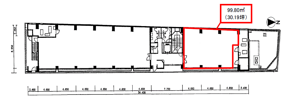
1階30.19坪

- この物件の賃料の価格帯(共益費込)
- この部屋は成約済みです
| 物件名 | 住友ビルディング第4号館 【このビルのその他の募集階】 |
||
|---|---|---|---|
| 住所 | 大阪府大阪市中央区北浜4丁目8番4号 淀屋橋・北浜でよく検索されるその他の物件 |
||
| 構造(規模) | 鉄骨鉄筋コンクリート造地下1階地上6階地下1階建 | ||
| 築年月 | 1983年5月1日 | ||
| 坪数 |
30.19坪 |
||
| 階数 | 1階 | ||
| 保証金 | - | ||
| 敷金 | - | ||
| 礼金 | - | ||
| 沿線 最寄駅 |
地下鉄御堂筋線 淀屋橋駅 徒歩3分 (淀屋橋駅の賃貸事務所) 京阪線(本線・中之島線) 淀屋橋駅 徒歩3分 (淀屋橋駅の賃貸事務所) 地下鉄四つ橋線 肥後橋駅 徒歩2分 (肥後橋駅の賃貸事務所) |
||
| アクセス | 新大阪駅まで電車9分 大阪駅梅田駅まで電車7分 関西空港まで電車50分、車45分 伊丹空港まで車25分 高速入口:環状線堂島入口 |
||
| EV基数 | 1基 | 人荷EV基数 | - |
| 空調タイプ | 個別 | ||
| 備考 | ・駅近・角ビル ・新耐震基準適合・天井高2550mm ・貸会議室有り・2007年全面リニューアル |
||

住友ビルディング4号館は大手商社所有のビルで基準階面積119坪の大型オフィスビルです。2007年にリニューアル済み。重厚なファサードは来訪者に歴史と風格ある印象を与えます。優良企業多数入居。住友ビルディング2号館の食堂や貸会議室などの設備が利用可能です。淀屋橋駅から徒歩3分、肥後橋駅から徒歩2分の好立地ビル。
- お電話でお問い合わせ(無料)
-
平日13時までのお問い合わせで
当日に物件をご紹介!
お電話の場合「物件番号:A101408」
をお伝えください

