お気に入りを解除しました。
新大阪第5ドイ
物件番号:D201114
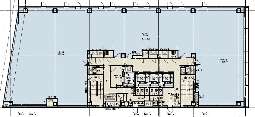
10階103.33坪
- この物件の賃料の価格帯(共益費込)
- この部屋は成約済みです
| 物件名 | 新大阪第5ドイ 【このビルのその他の募集階】 |
||
|---|---|---|---|
| 住所 | 大阪府大阪市淀川区宮原1丁目2番4号 新大阪・西中島でよく検索されるその他の物件 |
||
| 構造(規模) | 鉄骨造地上13階地下1階建 | ||
| 築年月 | 2023年4月 | ||
| 坪数 |
103.33坪 |
||
| 階数 | 10階 | ||
| 保証金 | - | ||
| 敷金 | - | ||
| 礼金 | - | ||
| 沿線 最寄駅 |
JR東海道本線 新大阪駅 徒歩1分 (新大阪駅の賃貸事務所) 地下鉄御堂筋線 新大阪駅 徒歩2分 (新大阪駅の賃貸事務所) JR東海道新幹線 新大阪駅 徒歩1分 (新大阪駅の賃貸事務所) |
||
| アクセス | 新大阪駅まで電車1分 大阪駅梅田駅まで電車11分 関西空港まで電車68分、車52分 伊丹空港まで車21分 高速入口:11号線加島入口 |
||
| EV基数 | 3基 | 人荷EV基数 | 1基 |
| 空調タイプ | 個別 | ||
| 備考 | ・駅近 ・新耐震基準適合 ・エレベーター3基 ・天井高2750mm ・喫煙ルーム ・駐輪場 ・バイク置場 |
||

各線『新大阪』駅から徒歩1、2分の駅近ビルです。基準階面積は200坪以上と大型な物件です。常用のエレベーターは3基あり、通勤時の混雑も緩和されること間違いなし!また駐輪場やバイク置場、喫煙ルームもあり、各種設備の整ったビルです。
- お電話でお問い合わせ(無料)
-
平日13時までのお問い合わせで
当日に物件をご紹介!
お電話の場合「物件番号:D201114」
をお伝えください

