お気に入りを解除しました。
GROOVE心斎橋East
物件番号:A503187
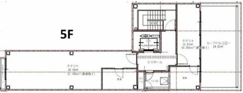
5階16.28坪
- この物件の賃料の価格帯(共益費込)
- この部屋は成約済みです
| 物件名 | GROOVE心斎橋East 【このビルのその他の募集階】 |
||
|---|---|---|---|
| 住所 | 大阪府大阪市中央区東心斎橋1丁目17番3号 心斎橋・長堀橋でよく検索されるその他の物件 |
||
| 構造(規模) | 鉄骨造地上5階 | ||
| 築年月 | 2020年7月 | ||
| 坪数 |
16.28坪 |
||
| 階数 | 5階 | ||
| 保証金 | - | ||
| 敷金 | - | ||
| 礼金 | - | ||
| 沿線 最寄駅 |
地下鉄御堂筋線 心斎橋駅 徒歩3分 (心斎橋駅の賃貸事務所) 地下鉄堺筋線 長堀橋駅 徒歩3分 (長堀橋駅の賃貸事務所) |
||
| アクセス | 新大阪駅まで電車19分 大阪駅梅田駅まで電車15分 関西空港まで電車53分、車43分 伊丹空港まで車21分 高速入口:長堀入口 |
||
| EV基数 | 1基 | 人荷EV基数 | - |
| 空調タイプ | 個別 | ||
| 備考 | 新築店舗ビル | ||

地下鉄御堂筋線『心斎橋』駅と地下鉄堺筋線『長堀橋』駅の中間、各駅から徒歩3分程の店舗・事務所ビルです。美容関係やアクセサリー店などにもオススメですし、飲食系(重飲食、軽飲食)も可能です。
- お電話でお問い合わせ(無料)
-
平日13時までのお問い合わせで
当日に物件をご紹介!
お電話の場合「物件番号:A503187」
をお伝えください

