お気に入りを解除しました。
橋本センター
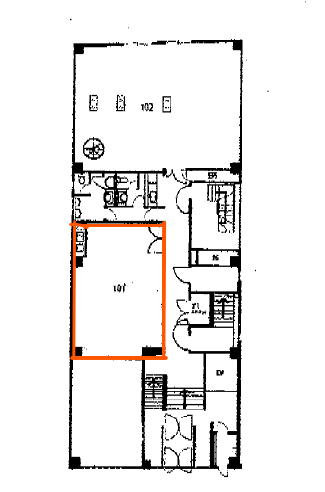
物件番号:A302021
1階13坪

- この物件の賃料の価格帯(共益費込)
- 坪@8,001円~@12,000円
| 物件名 | 橋本センター 【このビルのその他の募集階】 |
||
|---|---|---|---|
| 住所 | 大阪府大阪市中央区北浜東2番19号 天満橋・谷町でよく検索されるその他の物件 |
||
| 構造(規模) | 鉄骨鉄筋コンクリート造地上10階地下1階 | ||
| 築年月 | 1991年5月 | ||
| 坪数 |
13坪 |
||
| 階数 | 1階 | ||
| 保証金 | |||
| 敷金 | 賃料の6カ月分 | ||
| 礼金 | - | ||
| 沿線 最寄駅 |
京阪線(本線・中之島線) 天満橋駅 徒歩3分 (天満橋駅の賃貸事務所) 地下鉄谷町線 天満橋駅 徒歩4分 (天満橋駅の賃貸事務所) 地下鉄堺筋線 北浜駅 徒歩8分 (北浜駅の賃貸事務所) |
||
| アクセス | 新大阪駅まで電車19分 大阪駅梅田駅まで電車13分 関西空港まで電車57分、車45分 伊丹空港まで車20分 高速入口:環状線高麗橋・法円坂入口 |
||
| EV基数 | 1基 | 人荷EV基数 | - |
| 空調タイプ | 個別 | ||
| 備考 | |||
- お電話でお問い合わせ(無料)
-
平日13時までのお問い合わせで
当日に物件をご紹介!
お電話の場合「物件番号:A302021」
をお伝えください
