お気に入りを解除しました。
武田御堂筋
物件番号:A105417
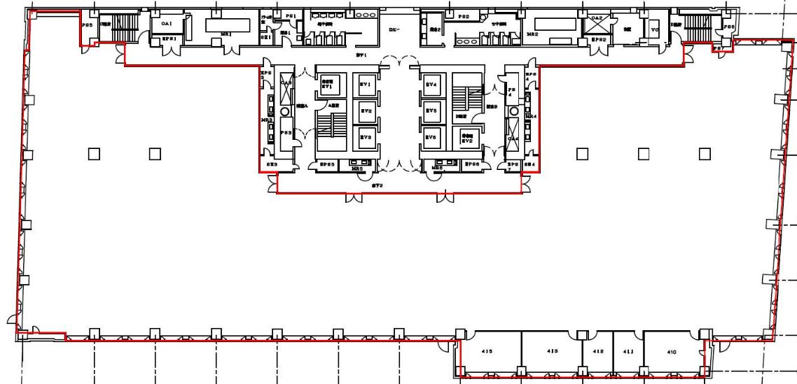
4階554.81坪
- この物件の賃料の価格帯(共益費込)
- この部屋は成約済みです
| 物件名 | 武田御堂筋 【このビルのその他の募集階】 |
||
|---|---|---|---|
| 住所 | 大阪府大阪市中央区道修町4丁目1番1号 淀屋橋・北浜でよく検索されるその他の物件 |
||
| 構造(規模) | 鉄骨鉄筋コンクリート造地上11階地下3階建 | ||
| 築年月 | 1991年11月 | ||
| 坪数 |
554.81坪 |
||
| 階数 | 4階 | ||
| 保証金 | - | ||
| 敷金 | - | ||
| 礼金 | - | ||
| 沿線 最寄駅 |
地下鉄御堂筋線 淀屋橋駅 徒歩1分 (淀屋橋駅の賃貸事務所) 地下鉄四つ橋線 肥後橋駅 徒歩4分 (肥後橋駅の賃貸事務所) 京阪線(本線・中之島線) 淀屋橋駅 徒歩1分 (淀屋橋駅の賃貸事務所) |
||
| アクセス | 新大阪駅まで電車13分 大阪駅梅田駅まで電車9分 関西空港まで電車53分、車44分 伊丹空港まで車17分 高速入口:環状線堂島入口 |
||
| EV基数 | 6基 | 人荷EV基数 | 2基 |
| 空調タイプ | 個別 | ||
| 備考 | ・駅近 ・大通り沿い ・大型ビル ・新耐震基準適合 ・エレベーター8基 ・天井高2.6m ・防災用非常用発電完備 ・非常用発電機設置スペース有 ・6階に授乳室有 |
||

武田御堂筋ビルは、御堂筋に面する基準階面積554坪の大型ビルです。地下鉄御堂筋線『淀屋橋駅』の13番出口から徒歩1分程と、駅へのアクセスもしやすいです。角地に位置し視認性も高く、重厚感のある外観がビルグレードの高さを物語っています。
- お電話でお問い合わせ(無料)
-
平日13時までのお問い合わせで
当日に物件をご紹介!
お電話の場合「物件番号:A105417」
をお伝えください
