お気に入りを解除しました。
プラザ梅新
物件番号:C201495
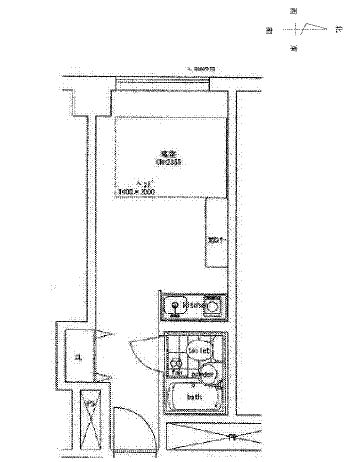
8階5.09坪
- この物件の賃料の価格帯(共益費込)
- 坪@15,001円~@20,000円
| 物件名 | プラザ梅新 【このビルのその他の募集階】 |
||
|---|---|---|---|
| 住所 | 大阪府大阪市北区西天満4丁目15番18号 梅田・南森町でよく検索されるその他の物件 |
||
| 構造(規模) | 鉄骨鉄筋コンクリート造地上15階地下1階建 | ||
| 築年月 | 1977年1月1日 | ||
| 坪数 |
5.09坪 |
||
| 階数 | 8階 | ||
| 保証金 | |||
| 敷金 | - | ||
| 礼金 | 賃料の3カ月分 | ||
| 沿線 最寄駅 |
地下鉄谷町線 東梅田駅 徒歩6分 (東梅田駅の賃貸事務所) 地下鉄御堂筋線 梅田駅 徒歩8分 (梅田駅の賃貸事務所) 地下鉄御堂筋線 淀屋橋駅 徒歩7分 (淀屋橋駅の賃貸事務所) |
||
| アクセス | 新大阪駅まで電車18分 大阪駅梅田駅まで電車12分 関西空港まで電車59分、車45分 伊丹空港まで車20分 高速入口:環状線南森町・堂島入口 |
||
| EV基数 | 1基 | 人荷EV基数 | - |
| 空調タイプ | 個別 | ||
| 備考 | 重厚感のあるレトロな赤レンガの建物。事務所の不在時も荷物の受取や来客の対応などのフロントサービスがあります。 | ||

梅新交差点に位置するホテルの機能を兼ね備えたSOHOタイプのコンパクトオフィスとまとまった坪数のオフィスがあるビルです。ロビーにはフロントが完備され、商談や待ち合わせ場所としてもご利用頂けます。店舗でのご利用もご相談可能です。
- お電話でお問い合わせ(無料)
-
平日13時までのお問い合わせで
当日に物件をご紹介!
お電話の場合「物件番号:C201495」
をお伝えください
類似物件のご紹介
RE:ZONE NAKATSU01(旧:中津清風)
-
-
住所 大阪府大阪市北区中津1丁目2番3号 交通 地下鉄御堂筋線 中津駅 徒歩1分
地下鉄御堂筋線 梅田駅 徒歩7分
JR大阪環状線 大阪駅 徒歩7分
竣工 1984年 構造 鉄骨造地上6階建
