お気に入りを解除しました。
TOSABORI IVY
物件番号:B101211
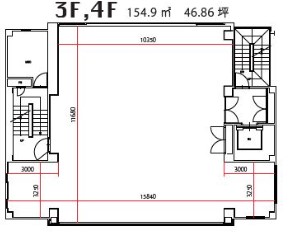
4階46.86坪

- この物件の賃料の価格帯(共益費込)
- この部屋は成約済みです
| 物件名 | TOSABORI IVY 【このビルのその他の募集階】 |
||
|---|---|---|---|
| 住所 | 大阪府大阪市西区土佐堀2丁目1番6号 肥後橋・本町でよく検索されるその他の物件 |
||
| 構造(規模) | 鉄骨造地上7階建 | ||
| 築年月 | 1988年5月1日 | ||
| 坪数 |
46.86坪 |
||
| 階数 | 4階 | ||
| 保証金 | - | ||
| 敷金 | - | ||
| 礼金 | - | ||
| 沿線 最寄駅 |
地下鉄四つ橋線 肥後橋駅 徒歩9分 (肥後橋駅の賃貸事務所) 京阪線(本線・中之島線) 中之島駅 徒歩7分 (中之島駅の賃貸事務所) 地下鉄中央線 阿波座駅 徒歩10分 (阿波座駅の賃貸事務所) |
||
| アクセス | 新大阪駅まで電車21分 大阪駅梅田駅まで電車15分 関西空港まで電車70分、車45分 伊丹空港まで車20分 高速入口:環状線中之島・阿波座入口 |
||
| EV基数 | - | 人荷EV基数 | - |
| 空調タイプ | |||
| 備考 | ・新耐震基準適合 ・デザイナーズ ・ワンフロアワンテナント ・空中店舗可能 ・リノベーション済み |
||

土佐堀川に面するリバービューのデザイナーズビルです。ステンレスのテナントサインやダウンライトがレトロモダンな雰囲気を演出しています。またワンフロアワンテナントで店舗利用も可能なので、ヨガスタジオやヘアサロンなど可能性も広がるテナントビルです。
- お電話でお問い合わせ(無料)
-
平日13時までのお問い合わせで
当日に物件をご紹介!
お電話の場合「物件番号:B101211」
をお伝えください

