お気に入りを解除しました。
住友商事千里ビル北館
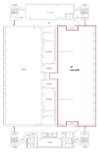
物件番号:O102107
5階234.25坪
- この物件の賃料の価格帯(共益費込)
- 坪@15,001円~@20,000円
| 物件名 | 住友商事千里ビル北館 【このビルのその他の募集階】 |
||
|---|---|---|---|
| 住所 | 大阪府豊中市新千里西町1丁目2番2号 江坂・千里中央・箕面でよく検索されるその他の物件 |
||
| 構造(規模) | 鉄筋コンクリート造地下1階地上9階建 | ||
| 築年月 | 1973年1月 | ||
| 坪数 |
234.25坪 |
||
| 階数 | 5階 | ||
| 保証金 | |||
| 敷金 | 賃料の12カ月分 | ||
| 礼金 | - | ||
| 沿線 最寄駅 |
地下鉄御堂筋線 千里中央駅 徒歩3分 (千里中央駅の賃貸事務所) |
||
| アクセス | 新大阪駅まで電車18分 大阪駅梅田駅まで電車24分 関西空港まで電車74分、車60分 伊丹空港まで車13分 高速入口:名神高速吹田入口 |
||
| EV基数 | 4基 | 人荷EV基数 | 1基 |
| 空調タイプ | 個別 | ||
| 備考 | |||

千里中央駅デッキ直結のオフィスビルです。エントランスにはセキュリティのチェックゲートが設置されており、セキュリティ体制も万全!テナント専用食堂(カフェテリア)・ラウンジ・貸会議室・健康管理室も利用可能です。
- お電話でお問い合わせ(無料)
-
平日13時までのお問い合わせで
当日に物件をご紹介!
お電話の場合「物件番号:O102107」
をお伝えください
