お気に入りを解除しました。
南船場心斎橋
物件番号:A205424
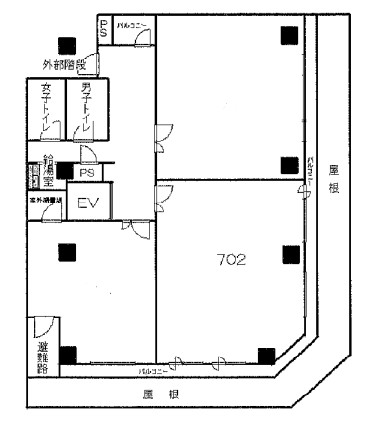
7階15.13坪

- この物件の賃料の価格帯(共益費込)
- この部屋は成約済みです
| 物件名 | 南船場心斎橋 【このビルのその他の募集階】 |
||
|---|---|---|---|
| 住所 | 大阪府大阪市中央区南船場4丁目7番11号 心斎橋・長堀橋でよく検索されるその他の物件 |
||
| 構造(規模) | 鉄骨造地上8階建 | ||
| 築年月 | 1985年4月30日 | ||
| 坪数 |
15.13坪 |
||
| 階数 | 7階 | ||
| 保証金 | - | ||
| 敷金 | - | ||
| 礼金 | - | ||
| 沿線 最寄駅 |
地下鉄御堂筋線 心斎橋駅 徒歩3分 (心斎橋駅の賃貸事務所) 地下鉄長堀鶴見緑地線 心斎橋駅 徒歩3分 (心斎橋駅の賃貸事務所) 地下鉄四つ橋線 四ツ橋駅 徒歩6分 (四ツ橋駅の賃貸事務所) |
||
| アクセス | 新大阪駅まで電車17分 大阪駅梅田駅まで電車11分 関西空港まで電車52分、車47分 伊丹空港まで車25分 高速入口:環状線信濃橋・阿波座・長堀 入口 |
||
| EV基数 | 1基 | 人荷EV基数 | - |
| 空調タイプ | 個別 | ||
| 備考 | |||

御堂筋線【心斎橋駅】から徒歩3分のビルです。周辺は百貨店や有名ブランドが並ぶお洒落なエリアです。2010年に共用部やトイレのリニューアルが施され、内装もお洒落になっております。デザイナーさんにぴったりのビルです。
- お電話でお問い合わせ(無料)
-
平日13時までのお問い合わせで
当日に物件をご紹介!
お電話の場合「物件番号:A205424」
をお伝えください
