お気に入りを解除しました。
大手前
物件番号:A301103
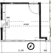
5階3.32坪

- この物件の賃料の価格帯(共益費込)
- この部屋は成約済みです
| 物件名 | 大手前 【このビルのその他の募集階】 |
||
|---|---|---|---|
| 住所 | 大阪府大阪市中央区谷町1丁目2番7号 天満橋・谷町でよく検索されるその他の物件 |
||
| 構造(規模) | 鉄骨造地上10階地下1階建 新耐震基準 | ||
| 築年月 | 1987年2月1日 | ||
| 坪数 |
3.32坪 |
||
| 階数 | 5階 | ||
| 保証金 | - | ||
| 敷金 | - | ||
| 礼金 | - | ||
| 沿線 最寄駅 |
地下鉄谷町線 天神橋筋六丁目駅 徒歩1分 (天神橋筋六丁目駅の賃貸事務所) 京阪線(本線・中之島線) 天満橋駅 徒歩1分 (天満橋駅の賃貸事務所) 地下鉄谷町線 谷町四丁目駅 徒歩8分 (谷町四丁目駅の賃貸事務所) |
||
| アクセス | 新大阪駅まで電車16分 大阪駅梅田駅まで電車10分 関西空港まで電車50分、車50分 伊丹空港まで車20分 高速入口:環状線高麗橋入口 |
||
| EV基数 | 1基 | 人荷EV基数 | - |
| 空調タイプ | 個別 | ||
| 備考 | 新耐震基準 | ||
- お電話でお問い合わせ(無料)
-
平日13時までのお問い合わせで
当日に物件をご紹介!
お電話の場合「物件番号:A301103」
をお伝えください
