お気に入りを解除しました。
FRONTIER梅新(旧大阪三信)
物件番号:C206101
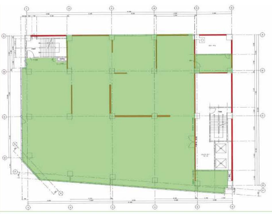
3階【セットアップオフィス】186.56坪
- この物件の賃料の価格帯(共益費込)
- この部屋は成約済みです
| 物件名 | FRONTIER梅新(旧大阪三信) 【このビルのその他の募集階】 |
||
|---|---|---|---|
| 住所 | 大阪府大阪市北区曽根崎1丁目1番2号 梅田・南森町でよく検索されるその他の物件 |
||
| 構造(規模) | 鉄骨鉄筋コンクリート造地上10階塔屋2階地下1階建 | ||
| 築年月 | 1974年11月1日 | ||
| 坪数 |
186.56坪 |
||
| 階数 | 3階 | ||
| 保証金 | - | ||
| 敷金 | - | ||
| 礼金 | - | ||
| 沿線 最寄駅 |
地下鉄御堂筋線 梅田駅 徒歩6分 (梅田駅の賃貸事務所) 地下鉄谷町線 東梅田駅 徒歩4分 (東梅田駅の賃貸事務所) 地下鉄堺筋線 南森町駅 徒歩8分 (南森町駅の賃貸事務所) |
||
| アクセス | 新大阪駅まで電車16分 大阪駅梅田駅まで電車10分 関西空港まで電車59分、車45分 伊丹空港まで車20分 高速入口:環状線南森町・扇町入口 |
||
| EV基数 | 2基 | 人荷EV基数 | - |
| 空調タイプ | 個別 | ||
| 備考 | |||
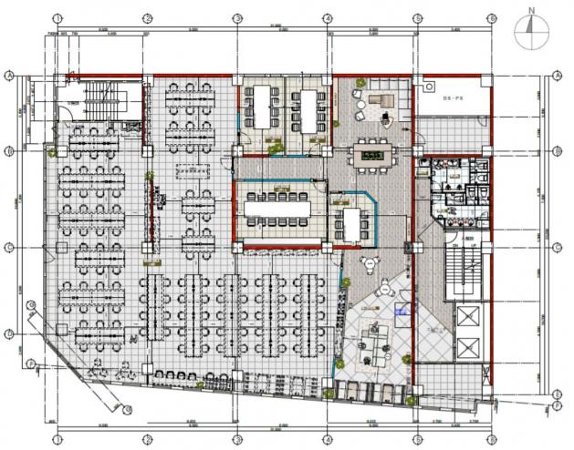
セットオフィス内容
フロア全体を綺麗にセットアップオフィスとしてリニューアルしています。
内装はウッド調で温かみを感じられる上に、会議室はガラス張りでスタイリッシュに仕上がっています。
○執務席(110席想定)
○レセプション
・ソファ席…16席
・テーブル席…24席
○ミーティングルーム
・6名会議室…1室
・8名会議室…2室
・12名会議室…1室
内装はウッド調で温かみを感じられる上に、会議室はガラス張りでスタイリッシュに仕上がっています。
○執務席(110席想定)
○レセプション
・ソファ席…16席
・テーブル席…24席
○ミーティングルーム
・6名会議室…1室
・8名会議室…2室
・12名会議室…1室
- 3階エレベーターホール
- 3階貸室内
- 3階貸室内
- ミーティングルーム(6名部屋)
- ミーティングルーム(8名部屋)
- ミーティングルーム(12名部屋)
- ラウンジ
- ラウンジ
- 貸室内廊下
- 3階共用部
- トイレ(女性用)
- トイレ(女性用)
- トイレ(男性用)
- トイレ(男性用)
- 水廻り
- イメージパース
- お電話でお問い合わせ(無料)
-
平日13時までのお問い合わせで
当日に物件をご紹介!
お電話の場合「物件番号:C206101」
をお伝えください
