お気に入りを解除しました。
あべのルシアス
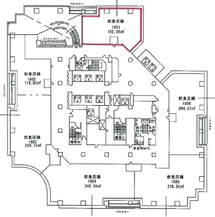
物件番号:N301101
16階46.15坪
- この物件の賃料の価格帯(共益費込)
- この部屋は成約済みです
| 物件名 | あべのルシアス 【このビルのその他の募集階】 |
||
|---|---|---|---|
| 住所 | 大阪府大阪市阿倍野区阿倍野筋1丁目5番1号 天満橋・谷町でよく検索されるその他の物件 |
||
| 構造(規模) | 鉄骨鉄筋コンクリート造地下5階地上16階建 | ||
| 築年月 | 1998年12月1日 | ||
| 坪数 |
46.15坪 |
||
| 階数 | 16階 | ||
| 保証金 | - | ||
| 敷金 | - | ||
| 礼金 | - | ||
| 沿線 最寄駅 |
地下鉄御堂筋線 天王寺駅 徒歩5分 (天王寺駅の賃貸事務所) JR大阪環状線 天王寺駅 徒歩5分 (天王寺駅の賃貸事務所) 地下鉄谷町線 天王寺駅 徒歩5分 (天王寺駅の賃貸事務所) |
||
| アクセス | 新大阪駅まで電車25分 大阪駅梅田駅まで電車19分 関西空港まで電車40分、車45分 伊丹空港まで車30分 高速入口:阿倍野・文の里入口 |
||
| EV基数 | 6基 | 人荷EV基数 | 3基 |
| 空調タイプ | 個別 | ||
| 備考 | |||

駅前のランドマーク、ハイグレード物件。
- お電話でお問い合わせ(無料)
-
平日13時までのお問い合わせで
当日に物件をご紹介!
お電話の場合「物件番号:N301101」
をお伝えください

