お気に入りを解除しました。
第一火災千里中央
物件番号:O102103
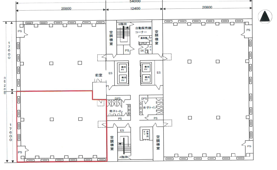
6階103.39坪

- この物件の賃料の価格帯(共益費込)
- 相談
| 物件名 | 第一火災千里中央 【このビルのその他の募集階】 |
||
|---|---|---|---|
| 住所 | 豊中市新千里西町1丁目1番8号 江坂・千里中央・箕面でよく検索されるその他の物件 |
||
| 構造(規模) | 鉄骨鉄筋コンクリート造地上10階地下2階建 | ||
| 築年月 | 1991年9月1日 | ||
| 坪数 |
103.39坪 |
||
| 階数 | 6階 | ||
| 保証金 | 相談 | ||
| 敷金 | - | ||
| 礼金 | - | ||
| 沿線 最寄駅 |
地下鉄御堂筋線 千里中央駅 徒歩5分 (千里中央駅の賃貸事務所) |
||
| アクセス | 新大阪駅まで電車17分 大阪駅梅田駅まで電車24分 関西空港まで電車73分、車60分 伊丹空港まで車13分 高速入口:名神高速吹田入口 |
||
| EV基数 | 4基 | 人荷EV基数 | 1基 |
| 空調タイプ | 集中 | ||
| 備考 | |||
御堂筋線「千里中央」駅徒歩約5分。迫力のある外観に清潔感のある貸室、共用部となっております。
- お電話でお問い合わせ(無料)
-
平日13時までのお問い合わせで
当日に物件をご紹介!
お電話の場合「物件番号:O102103」
をお伝えください
類似物件のご紹介
健都イノベーションパークNK
-
-
住所 大阪府摂津市千里丘新町3-17号 交通 竣工 2022年4月 構造 鉄骨造地上7階建
HF江坂ビルディング(旧インタープラネット江坂)
-
-
住所 大阪府吹田市江坂町1丁目13番48号 交通 地下鉄御堂筋線 江坂駅 徒歩3分
竣工 2008年7月31日 構造 鉄骨造地上9階建

