お気に入りを解除しました。
ゼント心斎橋(旧ヒューリック心斎橋)
物件番号:A205404
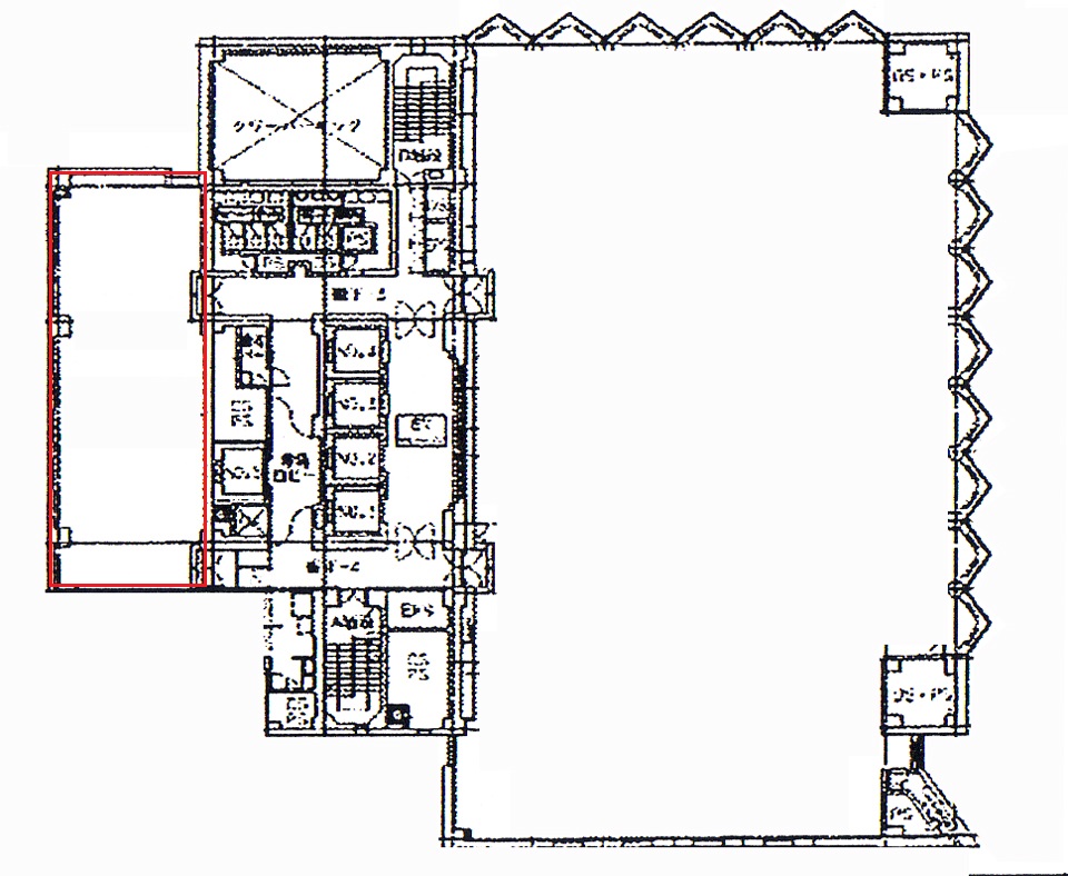
8階39.17坪

- この物件の賃料の価格帯(共益費込)
- この部屋は成約済みです
| 物件名 | ゼント心斎橋(旧ヒューリック心斎橋) 【このビルのその他の募集階】 |
||
|---|---|---|---|
| 住所 | 大阪府大阪市中央区南船場4丁目3番2号 心斎橋・長堀橋でよく検索されるその他の物件 |
||
| 構造(規模) | 鉄骨鉄筋コンクリート造地上12階建 | ||
| 築年月 | 1980年10月1日 | ||
| 坪数 |
39.17坪 |
||
| 階数 | 8階 | ||
| 保証金 | - | ||
| 敷金 | - | ||
| 礼金 | - | ||
| 沿線 最寄駅 |
地下鉄御堂筋線 心斎橋駅 徒歩3分 (心斎橋駅の賃貸事務所) 地下鉄長堀鶴見緑地線 心斎橋駅 徒歩3分 (心斎橋駅の賃貸事務所) 地下鉄四つ橋線 四ツ橋駅 徒歩5分 (四ツ橋駅の賃貸事務所) |
||
| アクセス | 新大阪駅まで電車16分 大阪駅梅田駅まで電車10分 関西空港まで電車52分、車46分 伊丹空港まで車25分 高速入口:環状線信濃橋・阿波座 |
||
| EV基数 | 4基 | 人荷EV基数 | 1基 |
| 空調タイプ | 個別 | ||
| 備考 | |||

御堂筋に面した抜群の立地に立つハイグレードオフィス。見上げればギザギザの外観で卓越したデザインが目を引きます。もちろんセキュリティや荷物用エレベーターも完備、管理も行き届いてます。貸室はワンフロア230坪~分割区画40坪までご提案が可能です。
- お電話でお問い合わせ(無料)
-
平日13時までのお問い合わせで
当日に物件をご紹介!
お電話の場合「物件番号:A205404」
をお伝えください
