お気に入りを解除しました。
戎橋NORTH
物件番号:A502214
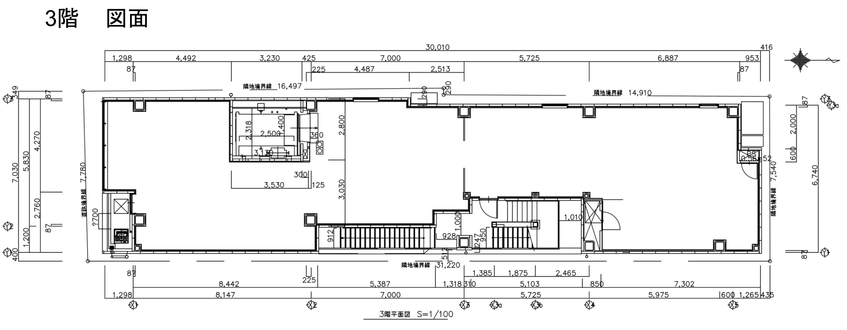
3階50.55坪

- この物件の賃料の価格帯(共益費込)
- この部屋は成約済みです
| 物件名 | 戎橋NORTH 【このビルのその他の募集階】 |
||
|---|---|---|---|
| 住所 | 大阪府大阪市中央区心斎橋筋2丁目3番15号 心斎橋・長堀橋・なんば・日本橋でよく検索されるその他の物件 |
||
| 構造(規模) | 鉄骨造地上6階建 | ||
| 築年月 | 2020年9月 | ||
| 坪数 |
50.55坪 |
||
| 階数 | 3階 | ||
| 保証金 | - | ||
| 敷金 | - | ||
| 礼金 | - | ||
| 沿線 最寄駅 |
地下鉄御堂筋線 なんば駅 徒歩5分 (なんば駅の賃貸事務所) 地下鉄御堂筋線 心斎橋駅 徒歩7分 (心斎橋駅の賃貸事務所) 地下鉄千日前線 なんば駅 徒歩5分 (なんば駅の賃貸事務所) |
||
| アクセス | 新大阪駅まで電車21分 大阪駅梅田駅まで電車17分 関西空港まで電車56分、車43分 伊丹空港まで車19分 高速入口:阪神高速1号環状線四ツ橋入り口 |
||
| EV基数 | 1基 | 人荷EV基数 | - |
| 空調タイプ | 個別 | ||
| 備考 | ・新耐震基準適合・店舗ビル ・空中店舗可・駐輪場有り ・バイク置場有り |
||
- お電話でお問い合わせ(無料)
-
平日13時までのお問い合わせで
当日に物件をご紹介!
お電話の場合「物件番号:A502214」
をお伝えください
類似物件のご紹介
(仮称)プレリー日本橋テナントPROJECT
-
-
住所 大阪府大阪市中央区日本橋1丁目5番10号 交通 地下鉄堺筋線 日本橋駅 徒歩1分
地下鉄千日前線 日本橋駅 徒歩1分
竣工 2025年12月1日 構造 鉄骨造地上11階地下1階

