お気に入りを解除しました。
たかせ
物件番号:C201363
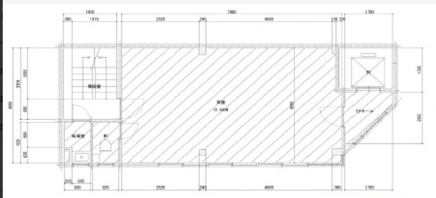
5階13.64坪

- この物件の賃料の価格帯(共益費込)
- 坪@8,001円~@12,000円
| 物件名 | たかせ 【このビルのその他の募集階】 |
||
|---|---|---|---|
| 住所 | 大阪府大阪市北区西天満3丁目11番3号 南森町でよく検索されるその他の物件 |
||
| 構造(規模) | 鉄骨造地上5階建 | ||
| 築年月 | 1985年2月 | ||
| 坪数 |
13.64坪 |
||
| 階数 | 5階 | ||
| 保証金 | |||
| 敷金 | 賃料の6カ月分 | ||
| 礼金 | 賃料の2カ月分 | ||
| 沿線 最寄駅 |
地下鉄谷町線 南森町駅 徒歩6分 (南森町駅の賃貸事務所) 地下鉄堺筋線 南森町駅 徒歩6分 (南森町駅の賃貸事務所) 京阪線(本線・中之島線) なにわ橋駅 徒歩4分 (なにわ橋駅の賃貸事務所) |
||
| アクセス | 新大阪駅まで電車21分 大阪駅梅田駅まで電車14分 関西空港まで電車64分、車46分 伊丹空港まで車19分 高速入口:環状線南森町・高麗橋入口 |
||
| EV基数 | 1基 | 人荷EV基数 | - |
| 空調タイプ | 個別 | ||
| 備考 | エレベーター1基、給湯設備 | ||

裁判所・法務局が徒歩2分以内という好立地ビル。西天満の大通りから一本南側に入った場所に位置し、アクセスの良さと落ち着いた環境のバランスがとれた物件。2019年10月にリノベーションが完了し、貸室内やトイレも綺麗になりました。
- お電話でお問い合わせ(無料)
-
平日13時までのお問い合わせで
当日に物件をご紹介!
お電話の場合「物件番号:C201363」
をお伝えください
