お気に入りを解除しました。
日本精化
物件番号:A109204
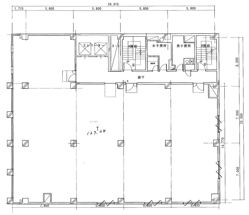
4階127.01坪
- この物件の賃料の価格帯(共益費込)
- この部屋は成約済みです
| 物件名 | 日本精化 【このビルのその他の募集階】 |
||
|---|---|---|---|
| 住所 | 大阪府大阪市中央区備後町2丁目4番9号 本町・堺筋本町でよく検索されるその他の物件 |
||
| 構造(規模) | 鉄骨鉄筋コンクリート造地上10階地下1階建 | ||
| 築年月 | 1973年7月 | ||
| 坪数 |
127.01坪 |
||
| 階数 | 4階 | ||
| 保証金 | - | ||
| 敷金 | - | ||
| 礼金 | - | ||
| 沿線 最寄駅 |
地下鉄堺筋線 堺筋本町駅 徒歩3分 (堺筋本町駅の賃貸事務所) 地下鉄中央線 堺筋本町駅 徒歩5分 (堺筋本町駅の賃貸事務所) 地下鉄御堂筋線 淀屋橋駅 徒歩6分 (淀屋橋駅の賃貸事務所) |
||
| アクセス | 新大阪駅まで電車17分 大阪駅梅田駅まで電車11分 関西空港まで電車52分、車47分 伊丹空港まで車25分 高速入口:環状線高麗橋・信濃橋・阿波座 |
||
| EV基数 | 2基 | 人荷EV基数 | - |
| 空調タイプ | 個別 | ||
| 備考 | ・耐震補強工事 ・新耐震基準適合 ・喫煙ルーム |
||

貫禄のあるドンとした佇まい、南向きの窓面明るい大型ビルです。前面が広くセットバックしているため、明るく開放感があります。大きくセットバックした敷地は平面駐車場になっており 、車の利用が多い企業も安心。現在耐震補強工事中で2020年秋以降に入居可能予定。エントランスリニューアルも実施予定ですので、ご期待下さい!
- お電話でお問い合わせ(無料)
-
平日13時までのお問い合わせで
当日に物件をご紹介!
お電話の場合「物件番号:A109204」
をお伝えください

