お気に入りを解除しました。
TMM
物件番号:A107405
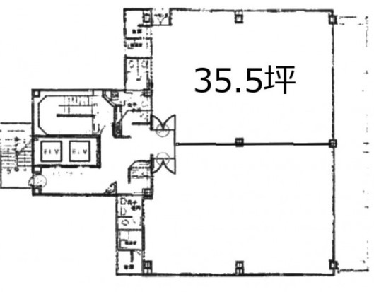
8階35.5坪

- この物件の賃料の価格帯(共益費込)
- この部屋は成約済みです
| 物件名 | TMM 【このビルのその他の募集階】 |
||
|---|---|---|---|
| 住所 | 大阪府大阪市中央区淡路町4丁目3番10号 淀屋橋・北浜・本町・堺筋本町でよく検索されるその他の物件 |
||
| 構造(規模) | 鉄骨鉄筋コンクリート造地上8階建 | ||
| 築年月 | 1996年6月1日 | ||
| 坪数 |
35.5坪 |
||
| 階数 | 8階 | ||
| 保証金 | - | ||
| 敷金 | - | ||
| 礼金 | - | ||
| 沿線 最寄駅 |
地下鉄御堂筋線 本町駅 徒歩4分 (本町駅の賃貸事務所) 地下鉄御堂筋線 淀屋橋駅 徒歩5分 (淀屋橋駅の賃貸事務所) 地下鉄四つ橋線 本町駅 徒歩6分 (本町駅の賃貸事務所) |
||
| アクセス | 新大阪駅まで電車16分 大阪駅梅田駅まで電車9分 関西空港まで電車54分、車48分 伊丹空港まで車23分 高速入口:環状線堂島・信濃橋・阿波座入口 |
||
| EV基数 | 2基 | 人荷EV基数 | - |
| 空調タイプ | 個別 | ||
| 備考 | ・新耐震基準適合 ・駐輪場有り |
||

御堂筋から1本西側に入った場所に位置する、大変落ち着いた印象のビル。外観はチョコレート色で、エントランスはダウンライトを使用し、エレベーターホールにはステンドグラスの装飾や珍しい中庭まであります。貸室は1フロア約80坪、2分割まで可能。1階はクロネコヤマトが入居中ですので、急ぎの荷物もすぐに配送も可能。
- お電話でお問い合わせ(無料)
-
平日13時までのお問い合わせで
当日に物件をご紹介!
お電話の場合「物件番号:A107405」
をお伝えください
