お気に入りを解除しました。
赤坂天六
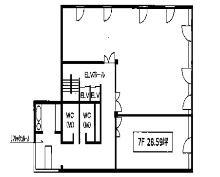
物件番号:C410005
※この物件は現在、非掲載とさせていただいております。詳細はお問合せください。

| 物件名 | 赤坂天六 【このビルのその他の募集階】 |
||
|---|---|---|---|
| 住所 | 大阪府大阪市北区浪花町12番24号 南森町でよく検索されるその他の物件 |
||
| 構造(規模) | 鉄骨鉄筋コンクリート造地上8階地下1階建 | ||
| 築年月 | 1991年7月1日 | ||
| 坪数 | |||
| 階数 | |||
| 保証金 | - | ||
| 敷金 | - | ||
| 礼金 | - | ||
| 沿線 最寄駅 |
地下鉄谷町線 天神橋筋六丁目駅 徒歩2分 (天神橋筋六丁目駅の賃貸事務所) JR大阪環状線 天満駅 徒歩3分 (天満駅の賃貸事務所) 地下鉄堺筋線 扇町駅 徒歩5分 (扇町駅の賃貸事務所) |
||
| アクセス | 新大阪駅まで電車15分 大阪駅梅田駅まで電車9分 関西空港まで電車55分、車45分 伊丹空港まで車20分 高速入口:環状線南森町・扇町入口 |
||
| EV基数 | 2基 | 人荷EV基数 | - |
| 空調タイプ | 個別 | ||
| 備考 | 大阪メトロ谷町線「天神橋筋六丁目」駅、阪急千里線「天神橋六丁目」駅の地上出口がビルのすぐ北側にあり、雨の日は傘がいらないほど便利な立地です。 | ||

日本一長いといわれる天神橋筋商店街の一番北側の端に位置する天神橋筋六丁目。最近ではギャルみこしが有名になっています。オフィス環境としてはランチや帰宅前のちょい呑みなどでお店に困ることが無いくらい楽しい環境です。大通りに面しており、来客の方にも視認性がありわかりやすいです。
- お電話でお問い合わせ(無料)
-
平日13時までのお問い合わせで
当日に物件をご紹介!
お電話の場合「物件番号:C410005」
をお伝えください
