お気に入りを解除しました。
KT
物件番号:A106223
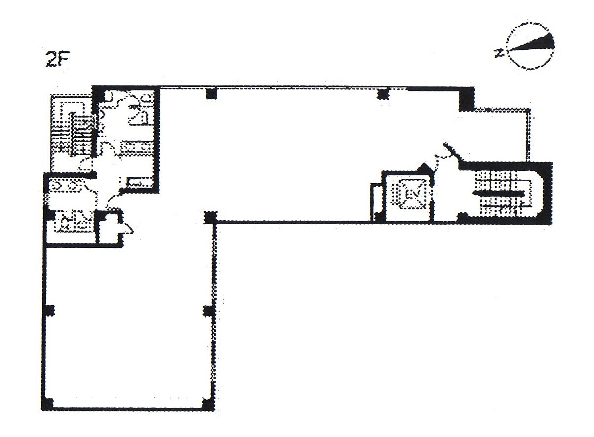
3階64.5坪

- この物件の賃料の価格帯(共益費込)
- この部屋は成約済みです
| 物件名 | KT 【このビルのその他の募集階】 |
||
|---|---|---|---|
| 住所 | 大阪府大阪市中央区平野町2丁目5番4号 淀屋橋・北浜でよく検索されるその他の物件 |
||
| 構造(規模) | 鉄骨造地上7階地下1階建 | ||
| 築年月 | 1985年9月1日 | ||
| 坪数 |
64.5坪 |
||
| 階数 | 3階 | ||
| 保証金 | - | ||
| 敷金 | - | ||
| 礼金 | - | ||
| 沿線 最寄駅 |
地下鉄堺筋線 北浜駅 徒歩4分 (北浜駅の賃貸事務所) 地下鉄御堂筋線 淀屋橋駅 徒歩5分 (淀屋橋駅の賃貸事務所) 京阪線(本線・中之島線) 北浜駅 徒歩6分 (北浜駅の賃貸事務所) |
||
| アクセス | 新大阪駅まで電車15分 大阪駅梅田駅まで電車9分 関西空港まで電車56分、車48分 伊丹空港まで車25分 高速入口:環状線高麗橋入口 |
||
| EV基数 | 1基 | 人荷EV基数 | - |
| 空調タイプ | 個別 | ||
| 備考 | ・角ビル ・新耐震基準適合 ・1フロア1テナント ・共用部リニューアル済み |
||

北浜エリアにある交差点角ビル。こまめにリニューアルを行っており気配りが行き届いています。室内はL字型の特徴的な形になっており、一部倉庫として利用するなど使い方のバリエーションが豊富。ワンフロアワンテナントで専用のキッチン、トイレがついています。
- お電話でお問い合わせ(無料)
-
平日13時までのお問い合わせで
当日に物件をご紹介!
お電話の場合「物件番号:A106223」
をお伝えください
