お気に入りを解除しました。
オリックス淀屋橋
物件番号:A101315
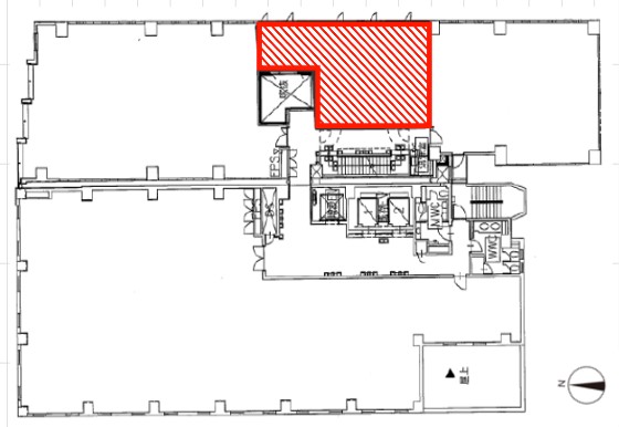
7階19.53坪

- この物件の賃料の価格帯(共益費込)
- この部屋は成約済みです
| 物件名 | オリックス淀屋橋 【このビルのその他の募集階】 |
||
|---|---|---|---|
| 住所 | 大阪府大阪市中央区北浜3丁目5番22号 淀屋橋・北浜でよく検索されるその他の物件 |
||
| 構造(規模) | 鉄骨鉄筋コンクリート造・鉄筋コンクリート造陸屋根地上9階地下2階建 | ||
| 築年月 | 1991年3月1日(増築部分2006年) | ||
| 坪数 |
19.53坪 |
||
| 階数 | 7階 | ||
| 保証金 | - | ||
| 敷金 | - | ||
| 礼金 | - | ||
| 沿線 最寄駅 |
地下鉄御堂筋線 淀屋橋駅 徒歩1分 (淀屋橋駅の賃貸事務所) 京阪線(本線・中之島線) 淀屋橋駅 徒歩1分 (淀屋橋駅の賃貸事務所) 地下鉄堺筋線 北浜駅 徒歩5分 (北浜駅の賃貸事務所) |
||
| アクセス | 新大阪駅まで電車9分 大阪駅梅田駅まで電車4分 関西空港まで電車53分、車48分 伊丹空港まで車25分 高速入口:環状線堂島入口 |
||
| EV基数 | 3基 | 人荷EV基数 | - |
| 空調タイプ | 個別 | ||
| 備考 | ・駅近・大通り沿い ・新耐震基準適合・エントランスLED照明化 ・屋上庭園有り・駐輪場有り ・2006年1月増築 |
||

オリックス淀屋橋ビルは淀屋橋エリアの中でも、立地、グレード、ともに優れたハイグレードオフィスビルです。立地は淀屋橋駅徒歩1分の駅近ビル。屋上庭園や吹き抜けなどワーカーに配慮した環境が整っています。土佐堀通に面した角ビルで視認性も期待できます。東側約2/3は2006年増築。
- お電話でお問い合わせ(無料)
-
平日13時までのお問い合わせで
当日に物件をご紹介!
お電話の場合「物件番号:A101315」
をお伝えください
